Postat 08 aprilie 2026
Casă Individuală Semifinisata De Vanzare In Dezmir - 4 Camere - 500
159 000 €
Firma
Camere: 4 sau mai multe
Suprafata utila: 110 m²
Descriere
- În Dezmir, într-o zonă liniștită de case, se vinde o locuință practică, bine gândită, cu spațiu suficient pentru o familie și un teren care chiar îți oferă libertate.
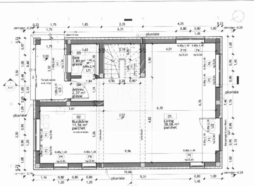
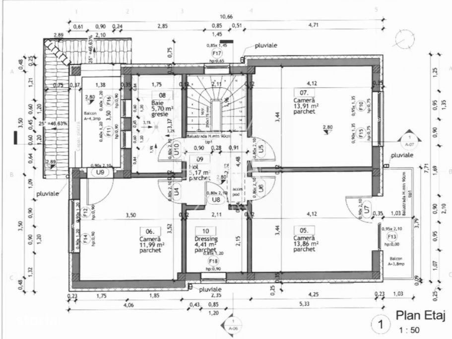
- Suprafață utilă 110 mp, teren 500 mp. Compartimentarea este eficientă: la parter avem livingul, bucătăria și o baie, iar etajul oferă 3 dormitoare, baie și dressing.
- Se va vinde la stadiul de semifinisat cu:
Centrala proprie cu încălzire în pardoseală, geamuri termopan și ușa metalică la intrare, șapă autonivelantă, pereți gletuiți și toate instalațiile trase la poziții.
- Terenul de 500 mp oferă spațiu suficient pentru grădină, terasă sau zonă de relaxare.
Preț 159.000 € TVA INCLUS
Daca vrei sa afli detalii mai concrete despre aceasta proprietate, suna la numarul de telefon afisat:
(folosesti formularul de contact) - ORA - Servicii Imobiliare Complete
Pentru tine și proprietatea ta, facem conexiunea la momentul potrivit!
Fie că iti cauți sa inchiriezi sau sa cumperi o locuinta pentru tine si familia ta, o oportunitate de investiție, un spatiu eficient pentru afacerea ta, suntem aici să-ti oferim acces la toată piața imobiliară din judetul Cluj, doar la o intalnire distanta.
Suntem aici pentru a simplifica procesul imobiliar, pentru a te ghida către cea mai bună decizie.
Consilierele din cadrul echipei noastre sunt intr-o continua cautare de proprietati, atat pe teren cat si online si isi folosesc toata experienta, pentru a-ți oferi:
- Evaluari corecte de piata astfel incat sa vinzi sau sa cumperi la cel mai optim pret.
- Proprietăți atent selectionate, care respectă preferintele tale
- Asistenta empatica in toata experienta de achizitionare/vanzare
- Sprijinul unei întregi echipe, procese clare si trasparente, ca tu să iei decizii informate în timp util.
Pentru ca intelegem frustrarea legata de cautarea proprietatii perfecte, stim sa transformăm ideile și dorințele tale imobiliare în realitate, cu empatie, profesionalism și implicare.
ORA – de la Aur si Timp si cat este de importanta colaborarea cu un consilier imobiliar implicat, pentru eficientizarea timpului, care e atat de pretios.
- Suprafață utilă 110 mp, teren 500 mp. Compartimentarea este eficientă: la parter avem livingul, bucătăria și o baie, iar etajul oferă 3 dormitoare, baie și dressing.
- Se va vinde la stadiul de semifinisat cu:
Centrala proprie cu încălzire în pardoseală, geamuri termopan și ușa metalică la intrare, șapă autonivelantă, pereți gletuiți și toate instalațiile trase la poziții.
- Terenul de 500 mp oferă spațiu suficient pentru grădină, terasă sau zonă de relaxare.
Preț 159.000 € TVA INCLUS
Daca vrei sa afli detalii mai concrete despre aceasta proprietate, suna la numarul de telefon afisat:
(folosesti formularul de contact) - ORA - Servicii Imobiliare Complete
Pentru tine și proprietatea ta, facem conexiunea la momentul potrivit!
Fie că iti cauți sa inchiriezi sau sa cumperi o locuinta pentru tine si familia ta, o oportunitate de investiție, un spatiu eficient pentru afacerea ta, suntem aici să-ti oferim acces la toată piața imobiliară din judetul Cluj, doar la o intalnire distanta.
Suntem aici pentru a simplifica procesul imobiliar, pentru a te ghida către cea mai bună decizie.
Consilierele din cadrul echipei noastre sunt intr-o continua cautare de proprietati, atat pe teren cat si online si isi folosesc toata experienta, pentru a-ți oferi:
- Evaluari corecte de piata astfel incat sa vinzi sau sa cumperi la cel mai optim pret.
- Proprietăți atent selectionate, care respectă preferintele tale
- Asistenta empatica in toata experienta de achizitionare/vanzare
- Sprijinul unei întregi echipe, procese clare si trasparente, ca tu să iei decizii informate în timp util.
Pentru ca intelegem frustrarea legata de cautarea proprietatii perfecte, stim sa transformăm ideile și dorințele tale imobiliare în realitate, cu empatie, profesionalism și implicare.
ORA – de la Aur si Timp si cat este de importanta colaborarea cu un consilier imobiliar implicat, pentru eficientizarea timpului, care e atat de pretios.
ID: 302307668
Contactează vânzătorul