Postat 16 aprilie 2026
Casă Individuala Semifinisata Cu Cf | De Vanzare | Cu Garaj | Popesti
325 000 €
Firma
Camere: 4 sau mai multe
Suprafata utila: 140 m²
Descriere
Nu este doar o casă, ci un spațiu în care îți poți pune amprenta ambientală de la zero.
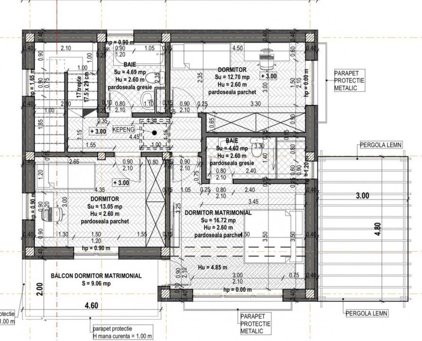
O casă semifinisata în Popesti, cu 140 mp utili și un teren de 500 mp, cu o compartimentare gândită eficient astfel - parterul include hol, baie, living cu bucătărie și două incaperi de depozitare, iar etajul oferă trei camere, două băi și o terasă de 10 mp – un spațiu perfect pentru relaxare. Podul open-space, cu înălțime de 2.75 m și utilități trase, aduce un plus de flexibilitate: depozitare sau posibilitatea de amenajare ca spațiu locuibil.
Unul dintre elementele care diferențiază această proprietate este orientarea și relația cu lumina. Poziționarea sud-vestică îți oferă în fiecare zi acel moment rar: lumina caldă de apus care pătrunde în casă și transformă atmosfera într-una relaxantă, aproape cinematică. Terasa devine astfel mai mult decât un spațiu exterior – devine locul în care ziua se încheie firesc, în lumină caldă, cu view deschis.
Exteriorul completează armonios proprietatea: curte amenajată la cheie, cu gazon, terase, alei pavate, iluminat ambiental și prize exterioare.
Garajul, poarta metalică și finisajele atent realizate oferă un spațiu sigur, modern și ușor de întreținut.
Din punct de vedere tehnic, casa este construită pentru eficiență pe termen lung: încălzire în pardoseală integrală, izolație de 15 cm, vată minerală de 20 cm în pod, tâmplărie Salamander Blue Evolution (3 sticle, 7 camere), sistem de aer condiționat multisplit Ariston și panouri fotovoltaice.
Clasa energetică A nu este doar un detaliu, ci o garanție a unor costuri optimizate și a unui confort constant.
Toate utilitățile sunt deja pe poziție – apă, gaz, curent și fosă septică individuală de 2500 L – astfel încât procesul de finalizare devine simplu și previzibil.
Preț: 325.000 euro TVA inclus
Daca vrei sa afli detalii mai concrete despre aceasta proprietate, suna la numarul de telefon afisat:
(folosesti formularul de contact) - ORA - Servicii Imobiliare Complete
Pentru tine și proprietatea ta, facem conexiunea la momentul potrivit!
Fie că iti cauți sa inchiriezi sau sa cumperi o locuinta pentru tine si familia ta, o oportunitate de investiție, un spatiu eficient pentru afacerea ta, suntem aici să-ti oferim acces la toată piața imobiliară din judetul Cluj, doar la o intalnire distanta.
Suntem aici pentru a simplifica procesul imobiliar, pentru a te ghida către cea mai bună decizie.
Consilierele din cadrul echipei noastre sunt intr-o continua cautare de proprietati, atat pe teren cat si online si isi folosesc toata experienta, pentru a-ți oferi:
- Evaluari corecte de piata astfel incat sa vinzi sau sa cumperi la cel mai optim pret.
- Proprietăți atent selectionate, care respectă preferintele tale
- Asistenta empatica in toata experienta de achizitionare/vanzare
- Sprijinul unei întregi echipe, procese clare si trasparente, ca tu să iei decizii informate în timp util.
Pentru ca intelegem frustrarea legata de cautarea proprietatii perfecte, stim sa transformăm ideile și dorințele tale imobiliare în realitate, cu empatie, profesionalism și implicare.
ORA – de la Aur si Timp si cat este de importanta colaborarea cu un consilier imobiliar implicat, pentru eficientizarea timpului, care e atat de pretios.
O casă semifinisata în Popesti, cu 140 mp utili și un teren de 500 mp, cu o compartimentare gândită eficient astfel - parterul include hol, baie, living cu bucătărie și două incaperi de depozitare, iar etajul oferă trei camere, două băi și o terasă de 10 mp – un spațiu perfect pentru relaxare. Podul open-space, cu înălțime de 2.75 m și utilități trase, aduce un plus de flexibilitate: depozitare sau posibilitatea de amenajare ca spațiu locuibil.
Unul dintre elementele care diferențiază această proprietate este orientarea și relația cu lumina. Poziționarea sud-vestică îți oferă în fiecare zi acel moment rar: lumina caldă de apus care pătrunde în casă și transformă atmosfera într-una relaxantă, aproape cinematică. Terasa devine astfel mai mult decât un spațiu exterior – devine locul în care ziua se încheie firesc, în lumină caldă, cu view deschis.
Exteriorul completează armonios proprietatea: curte amenajată la cheie, cu gazon, terase, alei pavate, iluminat ambiental și prize exterioare.
Garajul, poarta metalică și finisajele atent realizate oferă un spațiu sigur, modern și ușor de întreținut.
Din punct de vedere tehnic, casa este construită pentru eficiență pe termen lung: încălzire în pardoseală integrală, izolație de 15 cm, vată minerală de 20 cm în pod, tâmplărie Salamander Blue Evolution (3 sticle, 7 camere), sistem de aer condiționat multisplit Ariston și panouri fotovoltaice.
Clasa energetică A nu este doar un detaliu, ci o garanție a unor costuri optimizate și a unui confort constant.
Toate utilitățile sunt deja pe poziție – apă, gaz, curent și fosă septică individuală de 2500 L – astfel încât procesul de finalizare devine simplu și previzibil.
Preț: 325.000 euro TVA inclus
Daca vrei sa afli detalii mai concrete despre aceasta proprietate, suna la numarul de telefon afisat:
(folosesti formularul de contact) - ORA - Servicii Imobiliare Complete
Pentru tine și proprietatea ta, facem conexiunea la momentul potrivit!
Fie că iti cauți sa inchiriezi sau sa cumperi o locuinta pentru tine si familia ta, o oportunitate de investiție, un spatiu eficient pentru afacerea ta, suntem aici să-ti oferim acces la toată piața imobiliară din judetul Cluj, doar la o intalnire distanta.
Suntem aici pentru a simplifica procesul imobiliar, pentru a te ghida către cea mai bună decizie.
Consilierele din cadrul echipei noastre sunt intr-o continua cautare de proprietati, atat pe teren cat si online si isi folosesc toata experienta, pentru a-ți oferi:
- Evaluari corecte de piata astfel incat sa vinzi sau sa cumperi la cel mai optim pret.
- Proprietăți atent selectionate, care respectă preferintele tale
- Asistenta empatica in toata experienta de achizitionare/vanzare
- Sprijinul unei întregi echipe, procese clare si trasparente, ca tu să iei decizii informate în timp util.
Pentru ca intelegem frustrarea legata de cautarea proprietatii perfecte, stim sa transformăm ideile și dorințele tale imobiliare în realitate, cu empatie, profesionalism și implicare.
ORA – de la Aur si Timp si cat este de importanta colaborarea cu un consilier imobiliar implicat, pentru eficientizarea timpului, care e atat de pretios.
ID: 302791679
Contactează vânzătorul
Localitate
Cluj-Napoca
Cluj