Postat 23 decembrie 2025
Casă individuală Lisaura, Suceava
195 000 €
Persoana fizica
Camere: 3 camere
Locuinta mobilata / utilata: Complet
Descriere
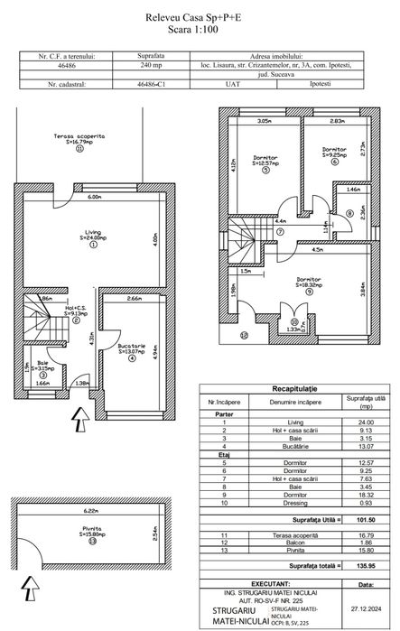
Casă individuală mobilată si utilată cu beci si bucătărie separată in Lisaura la 3km de Centru Suceava.
*Mutare imediată!
Dispune de:
-3 dormitoare;
-2 băi;
-Living;
-Bucătărie separată;
-Beci;
-Parcare pavată capacitate 3 mașini.
Suprafață utilată: 101.5mp
Terasă acoperită: 16.79mp
Balcon: 1.86mp
Pivniță (Beci): 15.80mp
Suprafață TOTALĂ: 135.95mp
Utilități:
-asfalt
-canalizare
-apă
-gaz
-curent electric
-internet
Construită din:
-cărămidă Porotherm
-izolatie exterioară polistiren 10cm si decorativă Caparol
-izolație pod vată bazaltica 4 straturi 30cm
-tamplarie 3 rânduri de sticlă tripan
-incalzire in pardoseală
-automatizare cu termostate pe fiecare cameră
-costuri încalzire foarte mici!
*Mutare imediată!
Dispune de:
-3 dormitoare;
-2 băi;
-Living;
-Bucătărie separată;
-Beci;
-Parcare pavată capacitate 3 mașini.
Suprafață utilată: 101.5mp
Terasă acoperită: 16.79mp
Balcon: 1.86mp
Pivniță (Beci): 15.80mp
Suprafață TOTALĂ: 135.95mp
Utilități:
-asfalt
-canalizare
-apă
-gaz
-curent electric
-internet
Construită din:
-cărămidă Porotherm
-izolatie exterioară polistiren 10cm si decorativă Caparol
-izolație pod vată bazaltica 4 straturi 30cm
-tamplarie 3 rânduri de sticlă tripan
-incalzire in pardoseală
-automatizare cu termostate pe fiecare cameră
-costuri încalzire foarte mici!
ID: 297382395
Contactează vânzătorul
xxx xxx xxx
Localitate
Lisaura
Suceava
