Postat Azi la 07:34
Casa individuala de vanzare Magurele Ilfov
219 000 €
Prețul e negociabil
Persoana fizica
Camere: 4 sau mai multe
Suprafata utila: 113 m²
Locuinta mobilata / utilata: Nemobilata / neutilata
Descriere
Aceasta este o casă de vânzare, cu o suprafață de 113 mp și 4 camere. Locuința este nemobilată și neutilată, oferind posibilitatea de a o personaliza după preferințele tale. Este ideală pentru o familie sau ca investitie.
În apropiere, găsești parcuri pentru relaxare și locuri de joacă pentru copii. Transportul public este ușor accesibil.
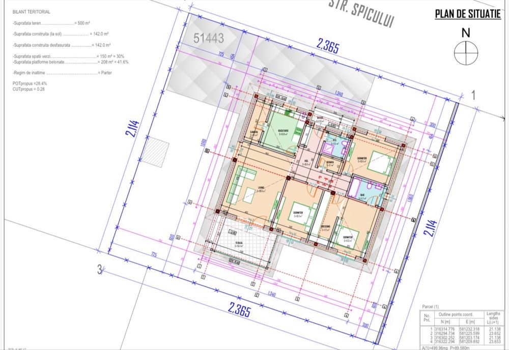
Terenul pe care se va construi locuinta este de 500 mp.
Casa are o suprafata construita de 142 mp si terasa 15 mp
Utilitati: curent, apa si canalizare de la reteaua publica, gaz, put.
Tamplaria geamurilor Veka tripan, 5 camere, incalzire prin pardoseala, placa de beton peste parter, usa de vizitare pod.
Perimetrul casei din pavele.
Se ofera posibilitatea alegerii finisajelor din buget prestabilit.
Constructia se afla la faza de proiectcu data de incepere noiebrie 2025.
Nu rata ocazia de a vizita această proprietate și a descoperi potențialul ei. Programează o vizionare!
În apropiere, găsești parcuri pentru relaxare și locuri de joacă pentru copii. Transportul public este ușor accesibil.
Terenul pe care se va construi locuinta este de 500 mp.
Casa are o suprafata construita de 142 mp si terasa 15 mp
Utilitati: curent, apa si canalizare de la reteaua publica, gaz, put.
Tamplaria geamurilor Veka tripan, 5 camere, incalzire prin pardoseala, placa de beton peste parter, usa de vizitare pod.
Perimetrul casei din pavele.
Se ofera posibilitatea alegerii finisajelor din buget prestabilit.
Constructia se afla la faza de proiectcu data de incepere noiebrie 2025.
Nu rata ocazia de a vizita această proprietate și a descoperi potențialul ei. Programează o vizionare!
ID: 294584914
Contactează vânzătorul
xxx xxx xxx
Localitate
Magurele
Bucuresti - Ilfov