Postat 27 ianuarie 2026
Casă individuală, cartierul Primăverii, Giarmata
229 000 €
Persoana fizica
Camere: 4 sau mai multe
Suprafata utila: 173 m²
Descriere
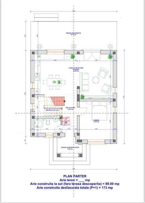
Persoană fizică vând casă cu etaj în centrul cartierului Primăverii, construcție 2025, 5 camere, 2 băi, terasă, carport, teren 507 mp, front stradal 17,5 m, stradă asfaltată cu trotuare amenajate, iluminat public stradal.
Toate utilitățile:
-gaz
-curent trifazic
-apă, canalizare
-internet, cablu TV
-carport 52 mp
-terasă 36 mp
-suprafața construită corpul principal al clădirii 173 mp
-suprafață utilă 130 mp
-suprafață totală construită 260 mp
Parter:
-dormitor sau birou 14 mp
-baie 4,5 mp
-living open space 36,5 mp
-hol 7,5 mp
-spatiu depozitare 7 mp
Etaj:
-dormitor 17,5 mp
-dormitor 16,5 mp
-dormitor 14 mp
-hol și scară 11,5 mp
-baie 6,75 mp
Construcție din cărămidă porotherm cu structură din beton, placă de beton și deasupra etajului, podul poate fi folosit în totalitate ca spațiu de depozitare.
Geamuri termopan Salamander, tripan 4 anotimpuri.
Casa se predă finalizată la cheie pentru detalii suplimentare contactați-ne.
PREȚ LA CHEIE 229.000 €
Toate utilitățile:
-gaz
-curent trifazic
-apă, canalizare
-internet, cablu TV
-carport 52 mp
-terasă 36 mp
-suprafața construită corpul principal al clădirii 173 mp
-suprafață utilă 130 mp
-suprafață totală construită 260 mp
Parter:
-dormitor sau birou 14 mp
-baie 4,5 mp
-living open space 36,5 mp
-hol 7,5 mp
-spatiu depozitare 7 mp
Etaj:
-dormitor 17,5 mp
-dormitor 16,5 mp
-dormitor 14 mp
-hol și scară 11,5 mp
-baie 6,75 mp
Construcție din cărămidă porotherm cu structură din beton, placă de beton și deasupra etajului, podul poate fi folosit în totalitate ca spațiu de depozitare.
Geamuri termopan Salamander, tripan 4 anotimpuri.
Casa se predă finalizată la cheie pentru detalii suplimentare contactați-ne.
PREȚ LA CHEIE 229.000 €
ID: 288333454
Contactează vânzătorul
xxx xxx xxx
Localitate
Giarmata
Timis
