Postat 27 ianuarie 2026
Casa Individuala 4 camere Cornetu, 428 mp teren, finisaje complete
129 000 €
Prețul e negociabil
Persoana fizica
Camere: 4 sau mai multe
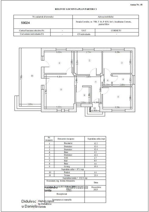
Suprafata utila: 112 m²
Locuinta mobilata / utilata: Nemobilata / neutilata
Descriere
De vanzare Casa Individuala cu 4 camere situata in Cornetu, Ilfov
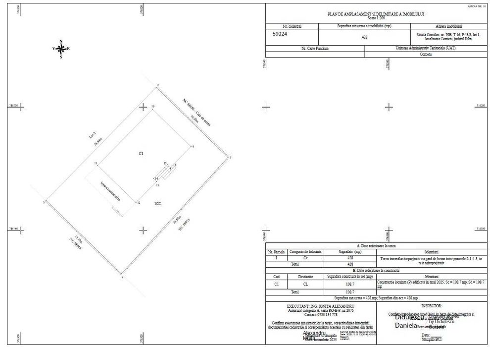
Suprafata teren 428 mp;
Suprafata totala casa 112 mp;
- Hol acces, Living spațios, foarte bine luminat natural, cu acces către terasă, Bucuatarie inchisa, 3 dormitoare, 2 bai, terasa;
Structură de rezistență: Casa este construită pe cadre de beton armat, asigurând o rezistență și o stabilitate superioară în timp.
Izolație: Izolarea termică a casei este realizată cu polistiren de 10 cm, densitate ESP 80, garantând o eficiență energetică sporită și costuri reduse la utilități.
Compartimentare: Zidăria exterioară și interioară este realizată din cărămidă tip Porotherm, un material eficient energetic, care contribuie la o bună izolare termică și fonică.
Placă de beton peste parter: Aceasta oferă o izolare superioară și un plus de siguranță structurală.
Finisaje si Dotari Complete:
- Gresie si faianta import;
- Parchet trafic intens;
- Usi interior montate;
- Obiecte sanitare in bai;
- Geamuri termoizolante Salamander;
- Izolatie exterioara realizata din polistiren de 10 cm cu densitate mare.
- Sistem de încălzire: Casa este prevăzută cu centrală termică proprie Ariston și încălzire în pardoseală cu distribuitor echipat cu pompă de recirculare a apei. Acest sistem modern garantează un confort termic optim și o eficiență sporită.
Racordata la toate utilitatile:
- gaze;
- electricitate;
- apa curenta;
- canalizare
Podul casei poate fi amenajat ca si spatiu de depozitare deoarece este turnata placa de beton.
Strada Cornilor, nr. 70B, localitatea Cornetu, judetul Ilfov
Zona fara aglomeratie si extrem de linistita - Doar Case!
Acces usor catre autostrada A0, Bragadiru, Magurele, Clinceni, Bucuresti
Suprafata teren 428 mp;
Suprafata totala casa 112 mp;
- Hol acces, Living spațios, foarte bine luminat natural, cu acces către terasă, Bucuatarie inchisa, 3 dormitoare, 2 bai, terasa;
Structură de rezistență: Casa este construită pe cadre de beton armat, asigurând o rezistență și o stabilitate superioară în timp.
Izolație: Izolarea termică a casei este realizată cu polistiren de 10 cm, densitate ESP 80, garantând o eficiență energetică sporită și costuri reduse la utilități.
Compartimentare: Zidăria exterioară și interioară este realizată din cărămidă tip Porotherm, un material eficient energetic, care contribuie la o bună izolare termică și fonică.
Placă de beton peste parter: Aceasta oferă o izolare superioară și un plus de siguranță structurală.
Finisaje si Dotari Complete:
- Gresie si faianta import;
- Parchet trafic intens;
- Usi interior montate;
- Obiecte sanitare in bai;
- Geamuri termoizolante Salamander;
- Izolatie exterioara realizata din polistiren de 10 cm cu densitate mare.
- Sistem de încălzire: Casa este prevăzută cu centrală termică proprie Ariston și încălzire în pardoseală cu distribuitor echipat cu pompă de recirculare a apei. Acest sistem modern garantează un confort termic optim și o eficiență sporită.
Racordata la toate utilitatile:
- gaze;
- electricitate;
- apa curenta;
- canalizare
Podul casei poate fi amenajat ca si spatiu de depozitare deoarece este turnata placa de beton.
Strada Cornilor, nr. 70B, localitatea Cornetu, judetul Ilfov
Zona fara aglomeratie si extrem de linistita - Doar Case!
Acces usor catre autostrada A0, Bragadiru, Magurele, Clinceni, Bucuresti
ID: 298668907
Contactează vânzătorul
xxx xxx xxx
Localitate
Cornetu
Bucuresti - Ilfov