Postat 26 decembrie 2025
Casă din 2018 cu pădure
222 000 €
Prețul e negociabil
Persoana fizica
Camere: 3 camere
Suprafata utila: 155 m²
Locuinta mobilata / utilata: Nemobilata / neutilata
Descriere
Casa particulara, proprietar.
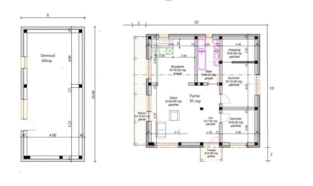
Suprafata utila 155mp. (95 mp etaj, 60mp demisol)
Amprenta la sol a constructiei este de 10 x 10 m.
Constructie finalizata in Mai 2018 cu toate materialele conf. proiectului.
-fundatie hidroizolata
-pereti caramida
-stalpi beton cu fier de 10
-izolatie exterioara din polistiren de 10 cm cu tencuiala intre perete si polistiren.
Ofer poze de detaliu pentru toate etapele constructiei, inclusiv probă carotată din fundație.
Demisol de 60 mp cu acces separat, baie proprie, posibilitate de acces la etaj cu scara interioara (exista deschizatura pentru acces, mascată in placă).
Etaj de 95mp, 2 dormitoare, baie, bucatarie open space din care se poate coborî la demisol sau urca in pod, balcon 12mp.
Acoperis mansardabil, legaturile la apa, curent trase.
Placa beton intre demisol si etaj, tavan pe structura din barne de 12x12 cm intre etaj si pod cu izolatie din vată minerală si podea din scândură.
Incalzire cu centrala prin condensare cu 10 calorifere mari, repartitoare si instalatie ingropata din PEX.
Terasa betonata de aprox. 30 mp, cu camin pt apa, robinet aditional de exterior, regulator presiune apa, clapeta de sens pt evacuare WC-uri.
Gard de beton pe doar 2 dintre laturile proprietatii.
Tamplarie tripan, suprafata vitrata foarte mare, usa acces de 1m latime, casa este foarte bine luminata natural, geamurile principale pozitionate catre apus, vedere deschisa. In zilele senine se vede Ceahlăul.
Teren de 1550 mp din care 400 mp intravilan, 600 mp teren curte, 550 mp padure.
Casa este ultima proprietate de pe o stada privata, pietruită, nu se mai fac constructii noi in apropiere. Distanță de 200 m pana la asfalt.
Racordata la utilitati, (apa, gaz, curent, fibră) cu fosa ecologica de 6 mc si dren de 25 m.
Locuita din 2024, se predă "la alb", băile
utilate.
Poze din interior doar pentru persoanele interesate, poate fi vizionată oricând.
Deschis la colaborare cu agentii, fără contract de exclusivitate.
Suprafata utila 155mp. (95 mp etaj, 60mp demisol)
Amprenta la sol a constructiei este de 10 x 10 m.
Constructie finalizata in Mai 2018 cu toate materialele conf. proiectului.
-fundatie hidroizolata
-pereti caramida
-stalpi beton cu fier de 10
-izolatie exterioara din polistiren de 10 cm cu tencuiala intre perete si polistiren.
Ofer poze de detaliu pentru toate etapele constructiei, inclusiv probă carotată din fundație.
Demisol de 60 mp cu acces separat, baie proprie, posibilitate de acces la etaj cu scara interioara (exista deschizatura pentru acces, mascată in placă).
Etaj de 95mp, 2 dormitoare, baie, bucatarie open space din care se poate coborî la demisol sau urca in pod, balcon 12mp.
Acoperis mansardabil, legaturile la apa, curent trase.
Placa beton intre demisol si etaj, tavan pe structura din barne de 12x12 cm intre etaj si pod cu izolatie din vată minerală si podea din scândură.
Incalzire cu centrala prin condensare cu 10 calorifere mari, repartitoare si instalatie ingropata din PEX.
Terasa betonata de aprox. 30 mp, cu camin pt apa, robinet aditional de exterior, regulator presiune apa, clapeta de sens pt evacuare WC-uri.
Gard de beton pe doar 2 dintre laturile proprietatii.
Tamplarie tripan, suprafata vitrata foarte mare, usa acces de 1m latime, casa este foarte bine luminata natural, geamurile principale pozitionate catre apus, vedere deschisa. In zilele senine se vede Ceahlăul.
Teren de 1550 mp din care 400 mp intravilan, 600 mp teren curte, 550 mp padure.
Casa este ultima proprietate de pe o stada privata, pietruită, nu se mai fac constructii noi in apropiere. Distanță de 200 m pana la asfalt.
Racordata la utilitati, (apa, gaz, curent, fibră) cu fosa ecologica de 6 mc si dren de 25 m.
Locuita din 2024, se predă "la alb", băile
utilate.
Poze din interior doar pentru persoanele interesate, poate fi vizionată oricând.
Deschis la colaborare cu agentii, fără contract de exclusivitate.
ID: 294283737
Contactează vânzătorul
xxx xxx xxx
Localitate
Valea Lupului
Iasi