Postat Azi la 08:29
Casa de vazare zona Ford-Hamat-Ionumi ,Fantana de piatra 21
249 000 €
Firma
Camere: 4 sau mai multe
Suprafata utila: 160 m²
Locuinta mobilata / utilata: Nemobilata / neutilata
Descriere
⸻
Casă de vânzare în zona Ford – Ionumi – Hanat
Locuință modernă, 193 mp construiți + terase, teren 480 finisată la cheie
Îți prezentăm o casă spațioasă și modernă, amplasată într-o zonă liniștită și în plină dezvoltare – Ford / Ionumi / Hamat. În zona s-a dezvoltat un cartier mixt cu blocuri și case , magazine , grădinițe , locuința se vinde la cheie, exact ca în pozele din prezentare, fiind construită cu materiale de calitate și atenție la fiecare detaliu.
-dispune de toate utilitățile , gaz, apă ,canal ,electricitate
În prezent este în execuția lucrărilor la roșu ,termenul de finalizare la cheie este sfârșitul anului 2026.
⸻
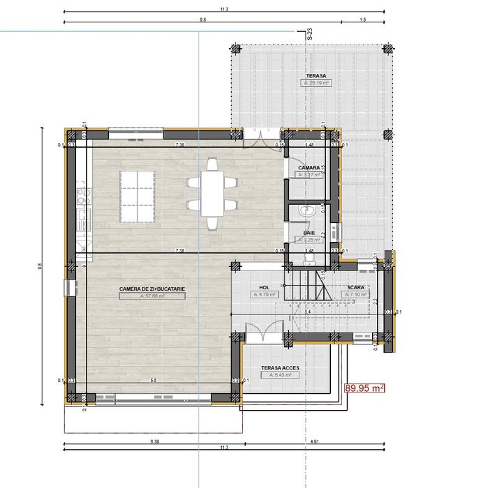
Parter – 90 mp construiți
• Living larg și luminos
• Bucătărie la alegere: deschisă sau închisă
• Baie
• Cameră tehnică
• Terase:
• Față: 5,43 mp
• Spate: 25 mp – perfectă pentru relaxare și activități în aer liber
⸻
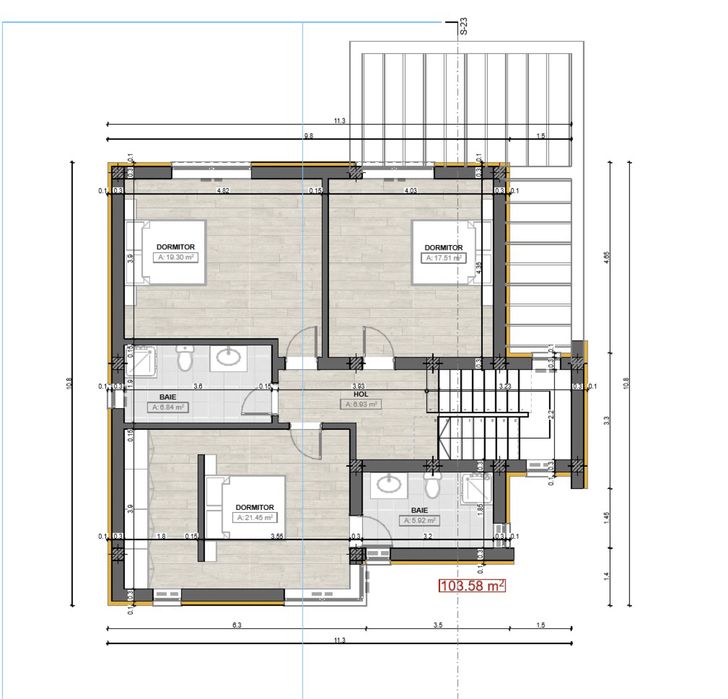
Etaj – 103 mp construiți
• Dormitor matrimonial – 21,45 mp, cu baie proprie și dressing
• Dormitor 2 – 19,30 mp
• Dormitor 3 – 17,51 mp
• Baie suplimentară
⸻
Detalii de construcție și finisaje
• Construită din BCA, pentru rezistență și izolare superioară
• Două plăci , asigurând stabilitate și durabilitate
• Termopane tripan, pentru eficiență energetică și confort fonic
• Viitorii proprietari pot vizualiza toate etapele lucrării
• decorativă la
•polistiren eps 100
• casa v-a arata exact ca in poze , curtea o sa fie amenajata dupa placul cumpărătorului
⸻
Teren: 480–860 mp
• Teren standard: 480 mp
• Posibilitate de extindere a curții până la 860 mp
• Mai multe detalii la telefon 07******00
Casă de vânzare în zona Ford – Ionumi – Hanat
Locuință modernă, 193 mp construiți + terase, teren 480 finisată la cheie
Îți prezentăm o casă spațioasă și modernă, amplasată într-o zonă liniștită și în plină dezvoltare – Ford / Ionumi / Hamat. În zona s-a dezvoltat un cartier mixt cu blocuri și case , magazine , grădinițe , locuința se vinde la cheie, exact ca în pozele din prezentare, fiind construită cu materiale de calitate și atenție la fiecare detaliu.
-dispune de toate utilitățile , gaz, apă ,canal ,electricitate
În prezent este în execuția lucrărilor la roșu ,termenul de finalizare la cheie este sfârșitul anului 2026.
⸻
Parter – 90 mp construiți
• Living larg și luminos
• Bucătărie la alegere: deschisă sau închisă
• Baie
• Cameră tehnică
• Terase:
• Față: 5,43 mp
• Spate: 25 mp – perfectă pentru relaxare și activități în aer liber
⸻
Etaj – 103 mp construiți
• Dormitor matrimonial – 21,45 mp, cu baie proprie și dressing
• Dormitor 2 – 19,30 mp
• Dormitor 3 – 17,51 mp
• Baie suplimentară
⸻
Detalii de construcție și finisaje
• Construită din BCA, pentru rezistență și izolare superioară
• Două plăci , asigurând stabilitate și durabilitate
• Termopane tripan, pentru eficiență energetică și confort fonic
• Viitorii proprietari pot vizualiza toate etapele lucrării
• decorativă la
•polistiren eps 100
• casa v-a arata exact ca in poze , curtea o sa fie amenajata dupa placul cumpărătorului
⸻
Teren: 480–860 mp
• Teren standard: 480 mp
• Posibilitate de extindere a curții până la 860 mp
• Mai multe detalii la telefon 07******00
ID: 297034939
Contactează vânzătorul
xxx xxx xxx