Postat 28 septembrie 2025
Casa de vanzare ultracentral Campia Turzii
215 000 €
Prețul e negociabil
Persoana fizica
Camere: 4 sau mai multe
Suprafata utila: 172 m²
Locuinta mobilata / utilata: Partial
Descriere
Se vinde casa individuala, situata intr-o zona centrala din Campia Turzii,str. Horea nr.10.
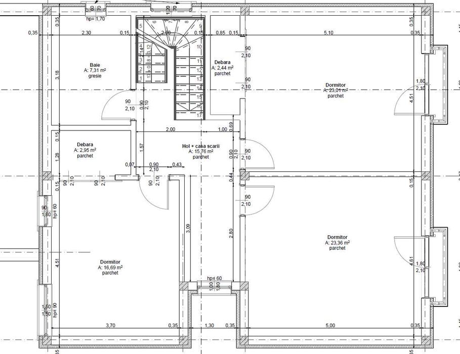
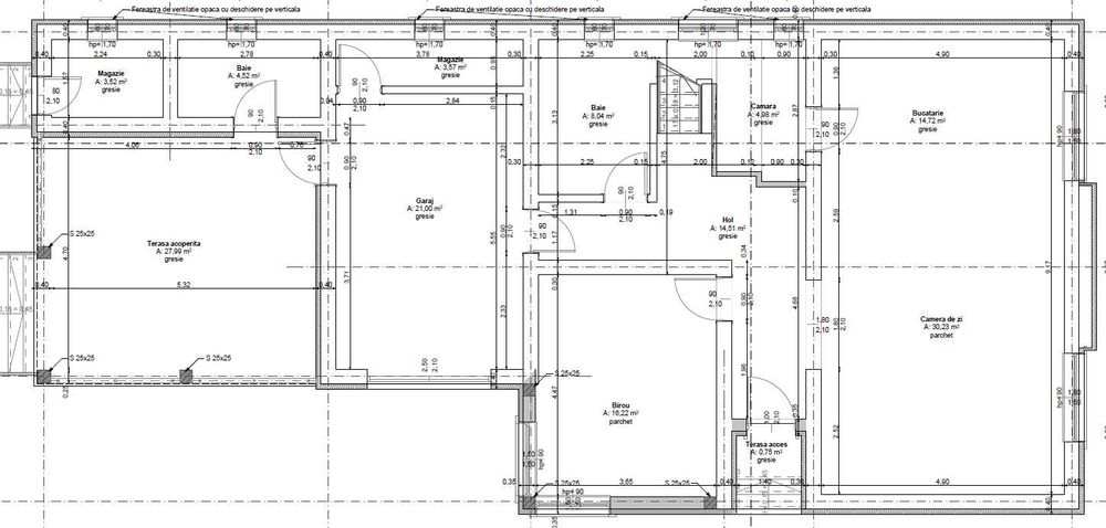
Casa are o suprafata 254 mp, suprafata ce include si garajul si o terasa de vara .
Este dispusa pe 2 niveluri si este, compartimentata astfel:
- Parter: living + bucatarie open space, baie, camera tehnica si un dormitor,
garaj,terasa de vara cu baie proprie, pivinta.
- Etaj: 3 dormitoare, hol, baie si terasa izolata;
Casa este la stadiul de semifinisata, geamuri si usi exterioare de termopan Veka,toate utilitatile sunt trase in casa, tavanul de la etaj este izolat cu spuma,incalzirea in pardosea cumparata pt toata casa dar nemontata.
Suprafata de teren aferenta imobilului este de 800 mp.
Casa are o suprafata 254 mp, suprafata ce include si garajul si o terasa de vara .
Este dispusa pe 2 niveluri si este, compartimentata astfel:
- Parter: living + bucatarie open space, baie, camera tehnica si un dormitor,
garaj,terasa de vara cu baie proprie, pivinta.
- Etaj: 3 dormitoare, hol, baie si terasa izolata;
Casa este la stadiul de semifinisata, geamuri si usi exterioare de termopan Veka,toate utilitatile sunt trase in casa, tavanul de la etaj este izolat cu spuma,incalzirea in pardosea cumparata pt toata casa dar nemontata.
Suprafata de teren aferenta imobilului este de 800 mp.
ID: 279027942
Contactează vânzătorul
xxx xxx xxx
Localitate
Campia Turzii
Cluj