Postat 26 decembrie 2025
Casa de vanzare Sacalaz, langa cartierul Primaverii
80 000 €
Persoana fizica
Camere: 4 sau mai multe
Suprafata utila: 100 m²
Locuinta mobilata / utilata: Nemobilata / neutilata
Descriere
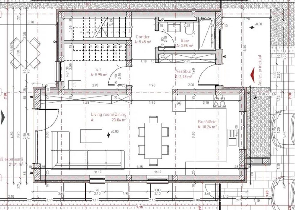
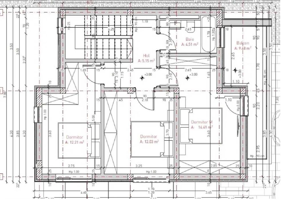
Proprietar ofer spre vanzare o casa individuala deosebita, la intrarea dinspre Timisoara in localitatea Sacalaz, langa cartierul Primaverii, cu o suprafata construita de 140 mp, avand regim de inaltime Parter + Etaj.
Vanzarea se face direct de la dezvoltator, fara nici un alt comision.
Suprafata utila 100 mp + terasa 22 mp, iar termenul de livrare este 31.03.2026
Compartimentarea este urmatoarea:
Parter: Hol acces, Living&Dining, Bucatarie, Baie, Camera tehnica
Etaj: 3 Dormitoare, Baie
Preț complet finisat 169000 euro ( 139669 euro + TVA 21%)
-Zidaria este realizata cu caramida potranta Porotherm Cemacon
-Izolatia este cu polistiren EPS 80, grosime 15 cm
-Incalzire in pardoseala
-Centrala termica pe gaz
-Tamplarie PVC Salamander tripan
-Acoperis tip terasa cu membrana PVC si pietris
-Se ofera buget generos pentru utilare bai (10000 lei), gresie (150 lei / mp), faianta (150 lei /mp), parchet (150 lei / mp)
-Utilitati trase: Apa, Canalizare, Gaz, Curent
Pret stadiu rosu 96800 Euro (80000 euro + tva):
-Zidaria este realizata cu caramida potranta Porotherm Cemacon
-Tamplarie PVC Salamander tripan
-Utilitarile in fata parcelei
Se acceptă și varianta de achiziționare prin intermediul unui credit bancar
Vanzarea se face direct de la dezvoltator, fara nici un alt comision.
Suprafata utila 100 mp + terasa 22 mp, iar termenul de livrare este 31.03.2026
Compartimentarea este urmatoarea:
Parter: Hol acces, Living&Dining, Bucatarie, Baie, Camera tehnica
Etaj: 3 Dormitoare, Baie
Preț complet finisat 169000 euro ( 139669 euro + TVA 21%)
-Zidaria este realizata cu caramida potranta Porotherm Cemacon
-Izolatia este cu polistiren EPS 80, grosime 15 cm
-Incalzire in pardoseala
-Centrala termica pe gaz
-Tamplarie PVC Salamander tripan
-Acoperis tip terasa cu membrana PVC si pietris
-Se ofera buget generos pentru utilare bai (10000 lei), gresie (150 lei / mp), faianta (150 lei /mp), parchet (150 lei / mp)
-Utilitati trase: Apa, Canalizare, Gaz, Curent
Pret stadiu rosu 96800 Euro (80000 euro + tva):
-Zidaria este realizata cu caramida potranta Porotherm Cemacon
-Tamplarie PVC Salamander tripan
-Utilitarile in fata parcelei
Se acceptă și varianta de achiziționare prin intermediul unui credit bancar
ID: 288247299
Contactează vânzătorul
xxx xxx xxx