Postat 24 martie 2026
Casa de vanzare premium !!!
120 000 €
Persoana fizica
Camere: 4 sau mai multe
Suprafata utila: 170 m²
Descriere
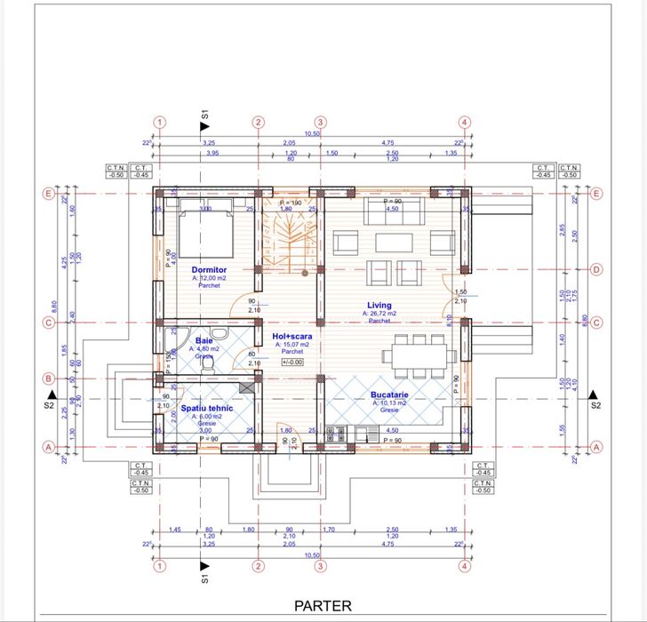
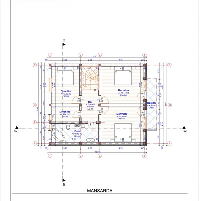
Casă premium 2025 | Parter + Mansardă + Pod | 170 mp utili | Teren 730 mp | Construcție de calitate superioară
Ofer spre vânzare casă individuală, construită în 2025, cu atenție deosebită la detalii și materiale din gama superioară, ideală pentru cei care își doresc confort, eficiență și durabilitate.
Caracteristici generale:
• Suprafață utilă: 170 mp
• Regim de înălțime: Parter + Mansardă + Pod
• Teren intravilan: 730 mp
• Construcție solidă din cărămidă
Specificații premium:
• Acoperiș din tablă BILKA (gamă superioară)
• Tâmplărie PVC VEKA (top), echipată cu bandă de etanșare pentru eficiență termică sporită
• Încălzire în pardoseală REHAU (țeavă 17 mm)
• Izolație exterioară cu polistiren grafitat de 15 cm (EPS 100)
• Izolație sub placa parter cu polistiren extrudat
• Instalații electrice, sanitare și canalizare complet realizate
• Șape turnate profesional
• Tencuială aplicată: 5 cm interior + 5 cm exterior
Avantaje suplimentare:
• Construcție realizată conform standardelor moderne, cu accent pe eficiență energetică
• Autorizație de construcție valabilă până în luna iulie (cu posibilitate de prelungire fără costuri)
• Documentație completă: fotografii și filmări din toate etapele construcției
Proprietatea oferă un excelent punct de plecare pentru amenajarea finală după propriul gust, fiind ideală atât pentru locuință personală, cât și pentru investiție.
Ofer spre vânzare casă individuală, construită în 2025, cu atenție deosebită la detalii și materiale din gama superioară, ideală pentru cei care își doresc confort, eficiență și durabilitate.
Caracteristici generale:
• Suprafață utilă: 170 mp
• Regim de înălțime: Parter + Mansardă + Pod
• Teren intravilan: 730 mp
• Construcție solidă din cărămidă
Specificații premium:
• Acoperiș din tablă BILKA (gamă superioară)
• Tâmplărie PVC VEKA (top), echipată cu bandă de etanșare pentru eficiență termică sporită
• Încălzire în pardoseală REHAU (țeavă 17 mm)
• Izolație exterioară cu polistiren grafitat de 15 cm (EPS 100)
• Izolație sub placa parter cu polistiren extrudat
• Instalații electrice, sanitare și canalizare complet realizate
• Șape turnate profesional
• Tencuială aplicată: 5 cm interior + 5 cm exterior
Avantaje suplimentare:
• Construcție realizată conform standardelor moderne, cu accent pe eficiență energetică
• Autorizație de construcție valabilă până în luna iulie (cu posibilitate de prelungire fără costuri)
• Documentație completă: fotografii și filmări din toate etapele construcției
Proprietatea oferă un excelent punct de plecare pentru amenajarea finală după propriul gust, fiind ideală atât pentru locuință personală, cât și pentru investiție.
ID: 301687392
Contactează vânzătorul
xxx xxx xxx