Postat 06 noiembrie 2025
Casa de vanzare pe parter
70 000 €
Prețul e negociabil
Persoana fizica
Camere: 3 camere
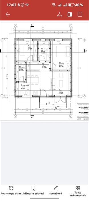
Suprafata utila: 60 m²
Locuinta mobilata / utilata: Nemobilata / neutilata
Descriere
*Casă din panouri SIP de vânzare – Dumbrava, la 8 minute de Târgoviște*
Oferim spre vânzare o casă modernă din panouri SIP, cu amprentă la sol de *76 mp*, situată în localitatea *Dumbrava*, într-un cartier liniștit, cu *vecini de calitate*, la doar 8 minute de Târgoviște.
*Detalii imobil:*
- Casă în *stadiu de gri*, construcția este *în derulare*;
- *Încălzire în pardoseală* montată;
- *Instalație electrică* realizată în proporție de *80%*;
- Se vinde *cu proiectul complet*;
- *Teren de 600 mp*;
- *Utilitățile sunt la poartă* (gaze, apă, canal, curent, internet);
- *Dosarele pentru utilități sunt pregătite* pentru a fi depuse
*Atenție!* Prețul este valabil pentru stadiul actual. Pe măsură ce lucrările avansează, *prețul va crește*.
Ideală pentru cei care își doresc o locuință eficientă, într-o zonă liniștită și bine conectată.
*Contactează-ne pentru detalii sau vizionare
Oferim spre vânzare o casă modernă din panouri SIP, cu amprentă la sol de *76 mp*, situată în localitatea *Dumbrava*, într-un cartier liniștit, cu *vecini de calitate*, la doar 8 minute de Târgoviște.
*Detalii imobil:*
- Casă în *stadiu de gri*, construcția este *în derulare*;
- *Încălzire în pardoseală* montată;
- *Instalație electrică* realizată în proporție de *80%*;
- Se vinde *cu proiectul complet*;
- *Teren de 600 mp*;
- *Utilitățile sunt la poartă* (gaze, apă, canal, curent, internet);
- *Dosarele pentru utilități sunt pregătite* pentru a fi depuse
*Atenție!* Prețul este valabil pentru stadiul actual. Pe măsură ce lucrările avansează, *prețul va crește*.
Ideală pentru cei care își doresc o locuință eficientă, într-o zonă liniștită și bine conectată.
*Contactează-ne pentru detalii sau vizionare
ID: 295209151
Contactează vânzătorul
xxx xxx xxx
Localitate
Dumbrava
Dambovita