Postat 08 februarie 2026
Casa de vanzare la rosu
125 000 €
Persoana fizica
Camere: 4 sau mai multe
Suprafata utila: 160 m²
Locuinta mobilata / utilata: Nemobilata / neutilata
Descriere
Casă parter la gri – Dumbrava, Bacău | 210 mp | Teren 1000 mp
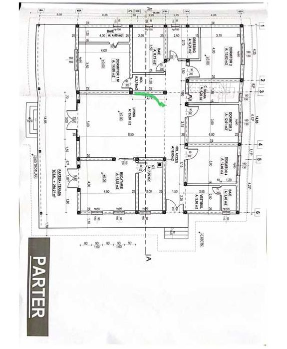
Se oferă spre vânzare casă parter, situată în localitatea Dumbrava, la doar 10–15 minute de municipiul Bacău, într-o zonă liniștită, cu acces rapid către oraș.
Caracteristici generale
Suprafață teren: 1000 mp
Amprentă la sol: 210 mp
Regim de înălțime: Parter
Stadiu: la gri
Tencuită interior și exterior
Construcție din BCA
Compartimentare
4 dormitoare, dintre care 1 dormitor matrimonial (master)
1 baie
1 toaletă de serviciu
dressing
holuri și spații de circulație bine dimensionate
Detalii tehnice și dotări
Tâmplărie PVC Rehau, cu geam tripan (3 foi de sticlă)
– antracit la exterior / alb la interior
Acoperiș din țiglă metalică Bilka Grande Mat, grosime 0,5 mm, cu garanție 30 de ani la culoare
Branșament la apă de la rețeaua publică
Branșament electric trifazat
Instalație sanitară și electrică complet realizate
Posibilitate de extindere/amenajare a podului, pentru obținerea de spațiu locuibil suplimentar
Avantaj major
La acest stadiu al construcției, locuința oferă libertate deplină de personalizare, permițând finalizarea cu materialele dorite și adaptarea fiecărui spațiu după propriul stil de viață, pentru a deveni casa visurilor tale.
O proprietate solid construită, spațioasă, aproape de oraș, ideală pentru o familie care caută confort, liniște și potențial.
PRETUL ESTE NEGOCIABIL> TEL. +447774542207
Se oferă spre vânzare casă parter, situată în localitatea Dumbrava, la doar 10–15 minute de municipiul Bacău, într-o zonă liniștită, cu acces rapid către oraș.
Caracteristici generale
Suprafață teren: 1000 mp
Amprentă la sol: 210 mp
Regim de înălțime: Parter
Stadiu: la gri
Tencuită interior și exterior
Construcție din BCA
Compartimentare
4 dormitoare, dintre care 1 dormitor matrimonial (master)
1 baie
1 toaletă de serviciu
dressing
holuri și spații de circulație bine dimensionate
Detalii tehnice și dotări
Tâmplărie PVC Rehau, cu geam tripan (3 foi de sticlă)
– antracit la exterior / alb la interior
Acoperiș din țiglă metalică Bilka Grande Mat, grosime 0,5 mm, cu garanție 30 de ani la culoare
Branșament la apă de la rețeaua publică
Branșament electric trifazat
Instalație sanitară și electrică complet realizate
Posibilitate de extindere/amenajare a podului, pentru obținerea de spațiu locuibil suplimentar
Avantaj major
La acest stadiu al construcției, locuința oferă libertate deplină de personalizare, permițând finalizarea cu materialele dorite și adaptarea fiecărui spațiu după propriul stil de viață, pentru a deveni casa visurilor tale.
O proprietate solid construită, spațioasă, aproape de oraș, ideală pentru o familie care caută confort, liniște și potențial.
PRETUL ESTE NEGOCIABIL> TEL. +447774542207
ID: 299160417
Contactează vânzătorul
xxx xxx xxx
