Reactualizat la 28 februarie 2026
Casa de vanzare in Recaș
135 000 €
Persoana fizica
Camere: 3 camere
Suprafata utila: 87 m²
Locuinta mobilata / utilata: Nemobilata / neutilata
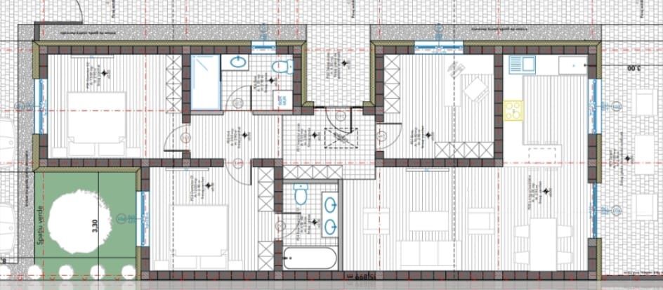
Descriere
Proprietar vând casă individuală pe parter, situată într-o zonă în dezvoltare din Recaș, aflată în prezent la stadiul de roșu (zidăria este finalizată), cu predare ulterioară la cheie.
Date tehnice:
• Teren: 351 mp
• Suprafață construită: 150 mp
• Suprafață utilă: 87 mp
Compartimentare:
• 3 camere
• 2 băi
• Living cu bucătărie open space
• Hol de acces
Specificații:
• Izolație exterioară cu polistiren de 15 cm
• Tâmplărie cu geam tripan
• Sistem de încălzire în pardoseală
• Utilități complete: apă, canalizare, gaz, energie electrică
• Iluminat stradal și fibră optică
• Construcție realizată conform normelor actuale de eficiență energetică
Avantaj: alegerea finisajelor interioare
Date tehnice:
• Teren: 351 mp
• Suprafață construită: 150 mp
• Suprafață utilă: 87 mp
Compartimentare:
• 3 camere
• 2 băi
• Living cu bucătărie open space
• Hol de acces
Specificații:
• Izolație exterioară cu polistiren de 15 cm
• Tâmplărie cu geam tripan
• Sistem de încălzire în pardoseală
• Utilități complete: apă, canalizare, gaz, energie electrică
• Iluminat stradal și fibră optică
• Construcție realizată conform normelor actuale de eficiență energetică
Avantaj: alegerea finisajelor interioare
ID: 299107893
Contactează vânzătorul
xxx xxx xxx