Postat 31 martie 2026
Casa de vanzare, Ghimbav
139 000 €
Prețul e negociabil
Persoana fizica
Camere: 3 camere
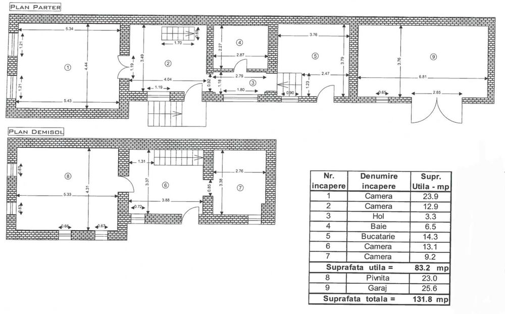
Suprafata utila: 83 m²
Locuinta mobilata / utilata: Nemobilata / neutilata
Descriere
Vand casa in Ghimbav in zonă liniștită, aproape de centrul, la doar câteva minute de Brașov.
Utilități complete: apă, canalizare, curent, gaz
Confort: centrală pe gaz + sobe de teracotă
Imobilul dispune de o suprafata utila de 83,2 mp + pivnita (23 mp) + garaj (25,6 mp), fiind amplasat pe un teren de 306 mp.
În imediata apropiere se regăsesc toate facilitățile esențiale: magazine alimentare, farmacii, școli, grădinițe, mijloace de transport în comun.
Pentru mai multe informații va rog sa ma contactati la numarul de telefon din anunt (nu prin intermediul mesageriei OLX)
Utilități complete: apă, canalizare, curent, gaz
Confort: centrală pe gaz + sobe de teracotă
Imobilul dispune de o suprafata utila de 83,2 mp + pivnita (23 mp) + garaj (25,6 mp), fiind amplasat pe un teren de 306 mp.
În imediata apropiere se regăsesc toate facilitățile esențiale: magazine alimentare, farmacii, școli, grădinițe, mijloace de transport în comun.
Pentru mai multe informații va rog sa ma contactati la numarul de telefon din anunt (nu prin intermediul mesageriei OLX)
ID: 301967906
Contactează vânzătorul
xxx xxx xxx
Localitate
Ghimbav
Brasov