Postat 19 martie 2026
Casa cu 4 camere, parter, Paulesti
210 000 €
Firma
Camere: 4 sau mai multe
Suprafata utila: 107 m²
Descriere
Va propunem spre vanzare vila cu 4 camere in Paulesti.
Casa este dispusa doar pe parter, cu structura pe cadre de beton, cu placa de beton si peretii din caramida Porotherm. La exterior este izolata termic cu polistiren, podul izolat cu vata minerala, acoperis tabla, tamplarie Salamander cu geam tripan.
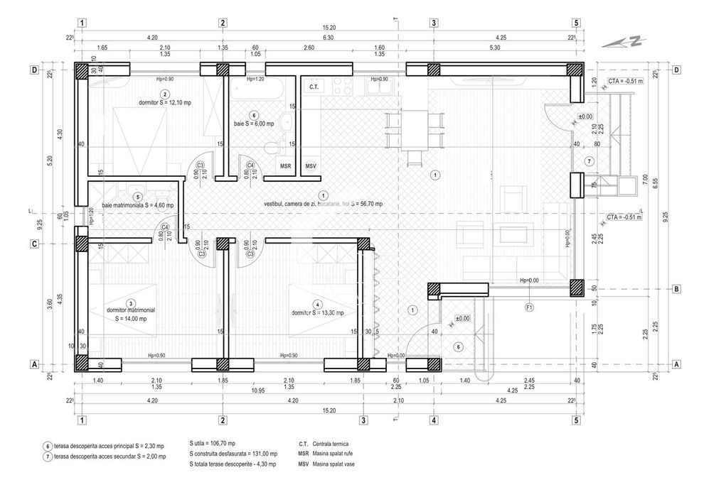
Imobilul este amplasat pe un teren in suprafata de 378 mp, cu o deschidere la strada de 25 ml, avand amprenta la sol de 135 mp, suprafata utila de 106,70 mp si este compartimentat astfel: hol intrare, living, bucatarie open space, dormitor matrimonial cu baie proprie, doua dormitoare, baie.
Vila se va preda la cheie, complet finisata, la pretul de 210.000 euro, TVA inclus.
Casa este dispusa doar pe parter, cu structura pe cadre de beton, cu placa de beton si peretii din caramida Porotherm. La exterior este izolata termic cu polistiren, podul izolat cu vata minerala, acoperis tabla, tamplarie Salamander cu geam tripan.
Imobilul este amplasat pe un teren in suprafata de 378 mp, cu o deschidere la strada de 25 ml, avand amprenta la sol de 135 mp, suprafata utila de 106,70 mp si este compartimentat astfel: hol intrare, living, bucatarie open space, dormitor matrimonial cu baie proprie, doua dormitoare, baie.
Vila se va preda la cheie, complet finisata, la pretul de 210.000 euro, TVA inclus.
ID: 299634332
Contactează vânzătorul