Postat 07 octombrie 2025
Casa 5 camere - Vatra Noua / Jandermeriei / Sisesti / Baneasa
379 999 €
Prețul e negociabil
Persoana fizica
Camere: 4 sau mai multe
Suprafata utila: 128 m²
Locuinta mobilata / utilata: Complet
Descriere
Proprietatea este construita pe un teren de 335 mp, beneficiind de o curte libera de 260 mp care inconjoara casa pe toate laturile – ideala pentru amenajari exterioare, zona verde, gratar sau loc de joaca pentru copii.
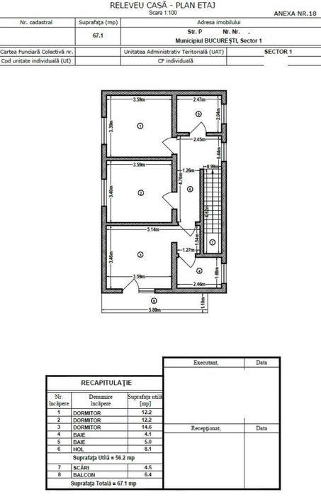
Cu o suprafata utila de 128 mp si regim de inaltime Parter + Etaj, locuinta este gandita pentru a oferi spatii generoase, luminoase si bine delimitate pentru fiecare zona de interes.
Descriere generală:
Suprafață utilă: 128 mp | Suprafață construită: 151 mp
Teren: 335 mp, cu o deschidere de 4 m pe calea de acces si in spate o deschidere de 11 m
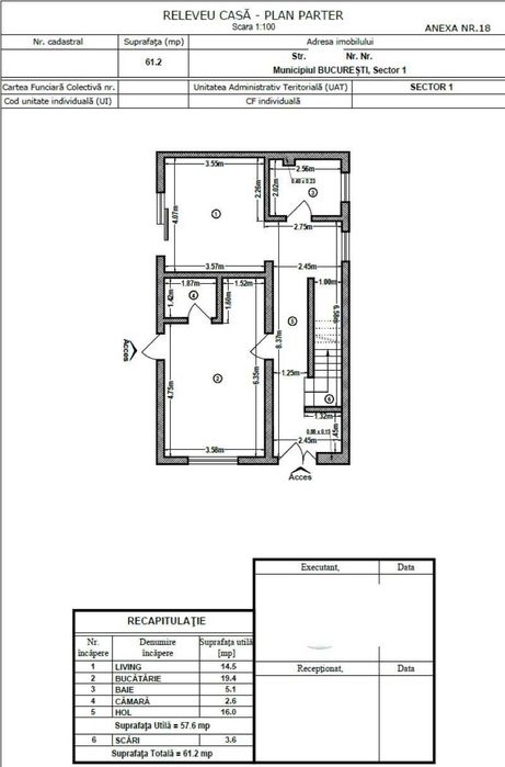
Compartimentare: Parter: living, bucătărie inchisa , cămară baie iar la Etaj: 1 dormitor matrimonial cu baie, 2 dormitoare + 1 baie.
Grupuri sanitare: 3 băi elegante, dotate cu finisaje premium și accesorii moderne
Construită în anul 2024, pentru a îndeplini cele mai moderne cerințe de locuire.
Case se vinde mobilata/utilata.
Fiecare camera este dotata cu aer conditionat, imobilul are sistem de supraveghere video si videointerfon.
Utilitati in curs de finalizare cu documentatie inregistrata la furnizori si avize de principiu
Documentație in curs de finalizare pentru intrare in legalitate a construtiei, inregistrata fiscal si cadastru si intabulare teren.
Cu o suprafata utila de 128 mp si regim de inaltime Parter + Etaj, locuinta este gandita pentru a oferi spatii generoase, luminoase si bine delimitate pentru fiecare zona de interes.
Descriere generală:
Suprafață utilă: 128 mp | Suprafață construită: 151 mp
Teren: 335 mp, cu o deschidere de 4 m pe calea de acces si in spate o deschidere de 11 m
Compartimentare: Parter: living, bucătărie inchisa , cămară baie iar la Etaj: 1 dormitor matrimonial cu baie, 2 dormitoare + 1 baie.
Grupuri sanitare: 3 băi elegante, dotate cu finisaje premium și accesorii moderne
Construită în anul 2024, pentru a îndeplini cele mai moderne cerințe de locuire.
Case se vinde mobilata/utilata.
Fiecare camera este dotata cu aer conditionat, imobilul are sistem de supraveghere video si videointerfon.
Utilitati in curs de finalizare cu documentatie inregistrata la furnizori si avize de principiu
Documentație in curs de finalizare pentru intrare in legalitate a construtiei, inregistrata fiscal si cadastru si intabulare teren.
ID: 290846730
Contactează vânzătorul
xxx xxx xxx
Localitate
Bucuresti, Sectorul 1
Bucuresti - Ilfov