Postat 11 martie 2026
Casa 4 camere - la Rosu , Tomesti- 115mp construiti cu beci si terasa
119 000 €
Persoana fizica
Camere: 4 sau mai multe
Suprafata utila: 97 m²
Descriere
Proprietar vând casă individuală situată în comuna Tomești, la câteva minute de centrul orasului Iași. FARA AGENTII VA ROG si FARA oferte la misto. Nu este urgenta pentru vanzare.
Construcția este realizată în 2025, din cărămidă Brikston BKS 25, și se află la stadiul la roșu cu acoperiș finalizat, fiind executată conform proiectului tehnic.
Acoperișul este realizat cu tablă Bilka Românica, material de calitate recunoscut pentru durabilitate și rezistență.
Casa dispune de beci sub aproximativ jumătate din suprafața construcției, cu înălțime de aproximativ 1,8 m, ideal pentru depozitare, cramă sau spațiu tehnic.
Investiția realizată până în prezent în construcție depășește 65000€.
Detalii proprietate:
teren: 600 mp
curent electric deja tras pe teren
utilități (apă / gaz / canal) la aprox. 50 m
construcție din cărămidă Brikston BKS 25
acoperiș din tablă Bilka Romanic
stadiu la roșu
beci sub jumătate din casă
proiect tehnic existent
curte spațioasă
Avantaje:
zonă liniștită aproape de Iași
teren generos pentru grădină sau livadă
posibilitatea de a finaliza casa după propriile preferințe
utilități foarte aproape
construcție solidă realizată recent cu materiale de calitate
Proprietatea este ideală pentru cei care doresc să finalizeze o locuință aproape de oraș, într-o zonă liniștită.
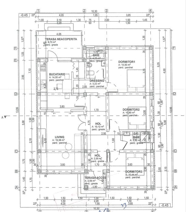
Suprafete din proiect
• Living: 19,38 mp
• Bucătărie: 14,55 mp
• Dormitor 1: 13,50 mp
• Dormitor 2: 10,80 mp
• Dormitor 3: 10,44 mp
• Baie 1: 4,25 mp
• Baie 2: 3,92 mp
• Dressing: 3,22 mp
• Holuri: ~12,67 mp
• Terasă spate: 9,72 mp
• Terasă acces: 2,59 mp
Construcția este realizată în 2025, din cărămidă Brikston BKS 25, și se află la stadiul la roșu cu acoperiș finalizat, fiind executată conform proiectului tehnic.
Acoperișul este realizat cu tablă Bilka Românica, material de calitate recunoscut pentru durabilitate și rezistență.
Casa dispune de beci sub aproximativ jumătate din suprafața construcției, cu înălțime de aproximativ 1,8 m, ideal pentru depozitare, cramă sau spațiu tehnic.
Investiția realizată până în prezent în construcție depășește 65000€.
Detalii proprietate:
teren: 600 mp
curent electric deja tras pe teren
utilități (apă / gaz / canal) la aprox. 50 m
construcție din cărămidă Brikston BKS 25
acoperiș din tablă Bilka Romanic
stadiu la roșu
beci sub jumătate din casă
proiect tehnic existent
curte spațioasă
Avantaje:
zonă liniștită aproape de Iași
teren generos pentru grădină sau livadă
posibilitatea de a finaliza casa după propriile preferințe
utilități foarte aproape
construcție solidă realizată recent cu materiale de calitate
Proprietatea este ideală pentru cei care doresc să finalizeze o locuință aproape de oraș, într-o zonă liniștită.
Suprafete din proiect
• Living: 19,38 mp
• Bucătărie: 14,55 mp
• Dormitor 1: 13,50 mp
• Dormitor 2: 10,80 mp
• Dormitor 3: 10,44 mp
• Baie 1: 4,25 mp
• Baie 2: 3,92 mp
• Dressing: 3,22 mp
• Holuri: ~12,67 mp
• Terasă spate: 9,72 mp
• Terasă acces: 2,59 mp
ID: 300538686
Contactează vânzătorul
xxx xxx xxx