Reactualizat la 27 aprilie 2026
Casa 3Dormitoare+3bai/Pod 60 mp/138mp ! Ultima unitate disponibila !
132 500 €
Firma
Camere: 4 sau mai multe
Suprafata utila: 138 m²
Locuinta mobilata / utilata: Nemobilata / neutilata
Descriere
Cernica Village Residence
ATENTIE
POZELE DIN ANUNT SUNT CU UNITATI LIVRATE ALE PROIECTULUI.
OFERIM POSIBILIATEA ALEGERII FINISAJELOR !
FINISAJE LA CHEIE - MUTARE 3 luni !
AI AVANTAJUL SA POTI URMARI CONSTRUCTIA PROPRIEI TALE CASE - FARA A AVEA BATAI DE CAP LEGATE DE GRAFICUL DE EXECUTIE AL LUCRARILOR SAU DE APROVIZIONAREA SANTIERULUI CU MATERIALELE NECESARE
5000 BUGET PENTRU FINISAJE INTERIOARE La alegerea clientului
PREZENTARE
Vilă tip DUPLEX
Parter Etaj Pod (semi-circulabil)
Placa de beton si peste Etajul 1
Tavane inalte : 275 cm utili
Locatie:
Casa face parte dintr un proiect de 3 duplexuri - 6 unitati locative
ETAPA 1 : 2 case VANDUTE SI MUTATI NOII REZIDENTI
ETAPA 2 : 4 case
Complexul este situat intr-o zonă de vile noi şi pe o stradă cu trafic redus. Padurea Cernica Pantelimon se afla la 500 metri.
Manastirea Cernica la 1 km
In vecinatatea complexului se realizeaza constructia noului Nod de Centura al Bucurestiului , A0
Strada Ciocănitorii 3-7 (Pantelimon) -
Zona Mânăstirea Cernica Padurea Cernica-Pantelimon Acces facil din strada Grădinarilor
Waze GPS : Cernica Village Residence
Suprafaţă utilă construcţie: 120mp + 18mp terasa + 60 mp POD
Amprenta: 74,3 mp.
Suprafaţă teren: 240mp
Curte liberă cu gazon:165mp
2 locuri de parcare
Structura casei:
Structura este compact realizata din cadre de beton armat cu fier beton fi12 14 16 (stalpi si grinzi) zidaria perimetrala (exterioara) cărămidă poroterm 25cm iar compartimentarile interioare sunt realizate din caramida de 11,5cm.
Structura
Termosistemul casei este realizat cu polistiren de 10 cm , eps80 , sistem de termosistem complet marca - Sika Inssulate
Fundatia casei este hidroizolata cu membrana bituminoasa
Acoperisul casei este invelit cu tabla de culoare gri antracit- Kubic de la Blitz Profile
Finisaje:
Casele sunt echipate cu:
Geamuri termopan tripan Rehau+ feronerie Roto rame colorate gri antracit atat interior cat si exterior + Sticla cu protectie solara
Încălzirea se face prin pardoseală atat Parter cat si la Etaj, cu termostat individual pentru fiecare camera
Centrala in condensatie pe Gaz - 32 kw
Casele pot fi dotate cu Pompa de caldura si panouri fotovoltaice
Toate Utilitatile:
Curent electric trifazat putere instalata 12KV
Gaze naturale
Fosa septica - ecologica capacitate 4 6 persoane
Foraj in a doua panza freatica -30 m
Casa se predă finisată complet.
Se acceptă credit.
Proprietar. Comision la cumpărare 0% (zero).
DURATA MUTARE : 3 luni de la data semnarii ! Finisaje interioare la alegerea ta .
Aveţi posibilitatea de a vă personaliza finisajele gresie, faianţă, uşi, parchet chiar si mici modificari de compartimentare, Bucatarie inchisa sau ingegrata intr-un living generos cu bacatarie tip open space
5000 - BUGET PENTRU FINISAJE INTERIOARE - La alegerea clientului
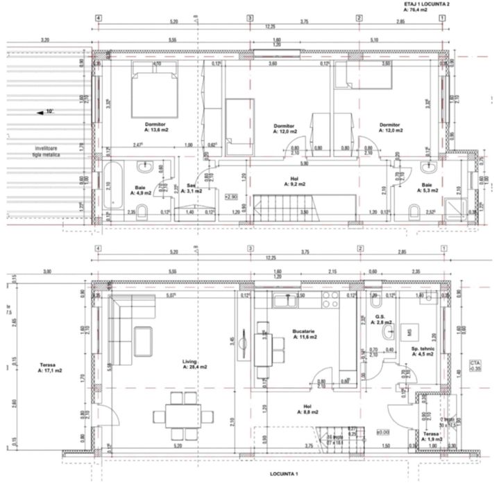
Parter compus din:
Living,Bucatarie inchisă (se poate opta si pentru open space), Baie de serviciu, Hol,Cameră Tehnică,Spatiu depozitare sub scara + Terasă in partea din spate 6x3 m (18mp)
Etaj compus din:
Baie cu cabina de dus, Hol, 2 dormitoare 13mp,1 dormitor decomandat tip matrimonial 20Mp , cu baie cu cadă si dresing propriu!
Pod generos pentru depozitare de - 70 mp (inaltimea la mijlocul coamei este de 1,9 metri)
Inaltime generoasa a tavanelor : 275cm
Vă punem la dispoziţie poze şi filmuleţe cu fiecare stadiu al execuţiei
PRET: 132,500 + TVA 21% / 1150€ / MP - FINISAJE CALITATE PREMIUM ! 100%
5000 - BUGET PENTRU FINISAJE INTERIOARE - La alegerea clientului
Casele pot fi dotate cu Pompa de căldură , un avantaj foarte mare avand in vedere pretul actual al gazului
CONSUM 0 GAZ !
CASE PREMIUM
VA INVITAM LA VIZIONARE TRANSPARENTA MAXIMA
CONTACT
Adrian S
DIRECT DEZVOLTATOR - COMISION 0%
Cernica Village Residence
Titan Village Residence
ATENTIE
POZELE DIN ANUNT SUNT CU UNITATI LIVRATE ALE PROIECTULUI.
OFERIM POSIBILIATEA ALEGERII FINISAJELOR !
FINISAJE LA CHEIE - MUTARE 3 luni !
AI AVANTAJUL SA POTI URMARI CONSTRUCTIA PROPRIEI TALE CASE - FARA A AVEA BATAI DE CAP LEGATE DE GRAFICUL DE EXECUTIE AL LUCRARILOR SAU DE APROVIZIONAREA SANTIERULUI CU MATERIALELE NECESARE
5000 BUGET PENTRU FINISAJE INTERIOARE La alegerea clientului
PREZENTARE
Vilă tip DUPLEX
Parter Etaj Pod (semi-circulabil)
Placa de beton si peste Etajul 1
Tavane inalte : 275 cm utili
Locatie:
Casa face parte dintr un proiect de 3 duplexuri - 6 unitati locative
ETAPA 1 : 2 case VANDUTE SI MUTATI NOII REZIDENTI
ETAPA 2 : 4 case
Complexul este situat intr-o zonă de vile noi şi pe o stradă cu trafic redus. Padurea Cernica Pantelimon se afla la 500 metri.
Manastirea Cernica la 1 km
In vecinatatea complexului se realizeaza constructia noului Nod de Centura al Bucurestiului , A0
Strada Ciocănitorii 3-7 (Pantelimon) -
Zona Mânăstirea Cernica Padurea Cernica-Pantelimon Acces facil din strada Grădinarilor
Waze GPS : Cernica Village Residence
Suprafaţă utilă construcţie: 120mp + 18mp terasa + 60 mp POD
Amprenta: 74,3 mp.
Suprafaţă teren: 240mp
Curte liberă cu gazon:165mp
2 locuri de parcare
Structura casei:
Structura este compact realizata din cadre de beton armat cu fier beton fi12 14 16 (stalpi si grinzi) zidaria perimetrala (exterioara) cărămidă poroterm 25cm iar compartimentarile interioare sunt realizate din caramida de 11,5cm.
Structura
Termosistemul casei este realizat cu polistiren de 10 cm , eps80 , sistem de termosistem complet marca - Sika Inssulate
Fundatia casei este hidroizolata cu membrana bituminoasa
Acoperisul casei este invelit cu tabla de culoare gri antracit- Kubic de la Blitz Profile
Finisaje:
Casele sunt echipate cu:
Geamuri termopan tripan Rehau+ feronerie Roto rame colorate gri antracit atat interior cat si exterior + Sticla cu protectie solara
Încălzirea se face prin pardoseală atat Parter cat si la Etaj, cu termostat individual pentru fiecare camera
Centrala in condensatie pe Gaz - 32 kw
Casele pot fi dotate cu Pompa de caldura si panouri fotovoltaice
Toate Utilitatile:
Curent electric trifazat putere instalata 12KV
Gaze naturale
Fosa septica - ecologica capacitate 4 6 persoane
Foraj in a doua panza freatica -30 m
Casa se predă finisată complet.
Se acceptă credit.
Proprietar. Comision la cumpărare 0% (zero).
DURATA MUTARE : 3 luni de la data semnarii ! Finisaje interioare la alegerea ta .
Aveţi posibilitatea de a vă personaliza finisajele gresie, faianţă, uşi, parchet chiar si mici modificari de compartimentare, Bucatarie inchisa sau ingegrata intr-un living generos cu bacatarie tip open space
5000 - BUGET PENTRU FINISAJE INTERIOARE - La alegerea clientului
Parter compus din:
Living,Bucatarie inchisă (se poate opta si pentru open space), Baie de serviciu, Hol,Cameră Tehnică,Spatiu depozitare sub scara + Terasă in partea din spate 6x3 m (18mp)
Etaj compus din:
Baie cu cabina de dus, Hol, 2 dormitoare 13mp,1 dormitor decomandat tip matrimonial 20Mp , cu baie cu cadă si dresing propriu!
Pod generos pentru depozitare de - 70 mp (inaltimea la mijlocul coamei este de 1,9 metri)
Inaltime generoasa a tavanelor : 275cm
Vă punem la dispoziţie poze şi filmuleţe cu fiecare stadiu al execuţiei
PRET: 132,500 + TVA 21% / 1150€ / MP - FINISAJE CALITATE PREMIUM ! 100%
5000 - BUGET PENTRU FINISAJE INTERIOARE - La alegerea clientului
Casele pot fi dotate cu Pompa de căldură , un avantaj foarte mare avand in vedere pretul actual al gazului
CONSUM 0 GAZ !
CASE PREMIUM
VA INVITAM LA VIZIONARE TRANSPARENTA MAXIMA
CONTACT
Adrian S
DIRECT DEZVOLTATOR - COMISION 0%
Cernica Village Residence
Titan Village Residence
ID: 278474887
Contactează vânzătorul
xxx xxx xxx
Localitate
Pantelimon
Bucuresti - Ilfov