Reactualizat azi la 11:46
Birouri Noi de Inchiriat Ultracentral Oradea
13 €
Firma
Vanzare/Inchiriere: Inchiriere
Suprafata utila: 50 m²
Descriere
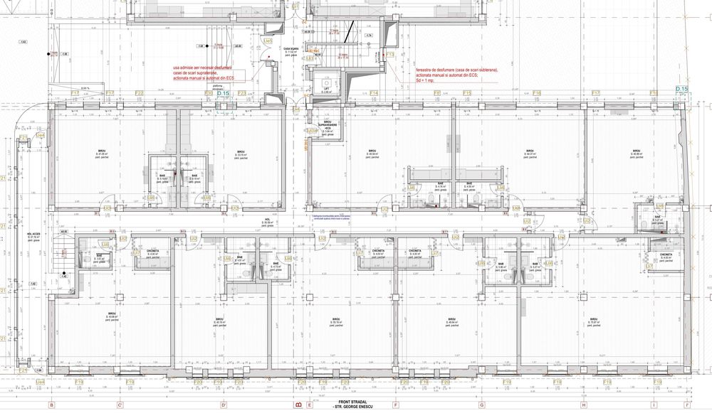
Va propunem spre inchiriere 10 spatii de birouri amplasate la Parterul unei cladiri noi situata ultracentral pe Str. G. Enescu, nr. 14, la doar 1 minut de Tribunalul Bihor.
Spatiile se pot inchiria integral, partial sau individual,
Suprafata utila variaza intre 38 mp si 80 mp per spatiu, iar interiorul se poate configura in functie de nevoile fiecarui client.
Zona de birouri are acces independent si securizat de restul cladirii.
Suprafata utila per birou disponibil:
Birou 1: 46.15 MP, Birou 6: 49.70 MP
Birou 2: 51.55 MP, Birou 7: 59.50 MP
Birou 3: 45.10 MP, Birou 8: 48.87 MP
Birou 4: 38.25 MP, Birou 9: 80.14 MP
Birou 5: 63.92 MP, Birou 10: 46.16 MP
Facilitati:
- Finisaje: grupuri sanitare amenajate si utilate
- Climatizare: aer conditionat individual
- Incalzire: prin pardoseala cu modul termic
- Curte cu spatiu verde si vegetatie
- Acces securizat
- Inaltime birou de 3.3 m
- Parcare privata la subsol contra cost
- Spatiu privat de depozitare contra cost
Costuri suplimentare:
- Asoociatie: intretinere bloc / spatii comune, curte si spatii verzi, lft, consum electric si apa, etc;
- Individual contorizat: electric, termoficare, compania de apa in functie de consumul fiecarui client.
Spatiile se pot inchiria integral, partial sau individual,
Suprafata utila variaza intre 38 mp si 80 mp per spatiu, iar interiorul se poate configura in functie de nevoile fiecarui client.
Zona de birouri are acces independent si securizat de restul cladirii.
Suprafata utila per birou disponibil:
Birou 1: 46.15 MP, Birou 6: 49.70 MP
Birou 2: 51.55 MP, Birou 7: 59.50 MP
Birou 3: 45.10 MP, Birou 8: 48.87 MP
Birou 4: 38.25 MP, Birou 9: 80.14 MP
Birou 5: 63.92 MP, Birou 10: 46.16 MP
Facilitati:
- Finisaje: grupuri sanitare amenajate si utilate
- Climatizare: aer conditionat individual
- Incalzire: prin pardoseala cu modul termic
- Curte cu spatiu verde si vegetatie
- Acces securizat
- Inaltime birou de 3.3 m
- Parcare privata la subsol contra cost
- Spatiu privat de depozitare contra cost
Costuri suplimentare:
- Asoociatie: intretinere bloc / spatii comune, curte si spatii verzi, lft, consum electric si apa, etc;
- Individual contorizat: electric, termoficare, compania de apa in functie de consumul fiecarui client.
ID: 299681576
Contactează vânzătorul
xxx xxx xxx