Navighează la conținutul principal
Chat

Notificari

Adaugă anunț nou
birou de inchiriat 1 luna gratie
birou de inchiriat 1 luna gratie
birou de inchiriat 1 luna gratie
birou de inchiriat 1 luna gratie
Postat 07 octombrie 2025

birou de inchiriat 1 luna gratie

400 €

PromoveazăReactualizează

Firma

Vanzare/Inchiriere: Inchiriere

Suprafata utila: 85 m²

Descriere

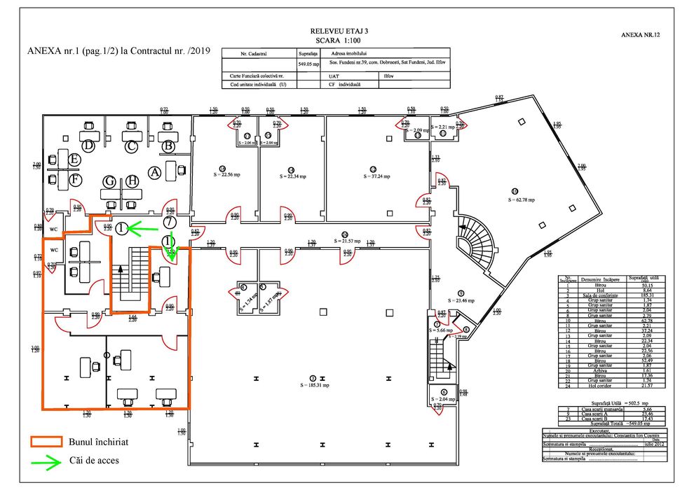
Birou de inchiriat, in suprafata de 85 mp, compartimentat, mobilat, utilat si contorizat separat, grup sanitar separat, aer conditionat, in cladire de birouri, cladirea dispune de lift si parcare privata.
Perioada minima contractuala 12 luni. La semnarea contractului se acorda 1 luna gratie.
ID: 274795458

Contactează vânzătorul

Madalina Gheorghiu

Pe OLX din ianuarie 2012

Activ pe 30 octombrie 2025

xxx xxx xxx

Localitate

Location

Fundeni

Bucuresti - Ilfov

Descarca aplicatia pentru telefonul tau