Postat 10 ianuarie 2026
Apartament doua camere
75 000 €
Prețul e negociabil
Persoana fizica
Compartimentare: Decomandat
Descriere
Apartament 2 camere de vânzare – zonă centrală, Berca
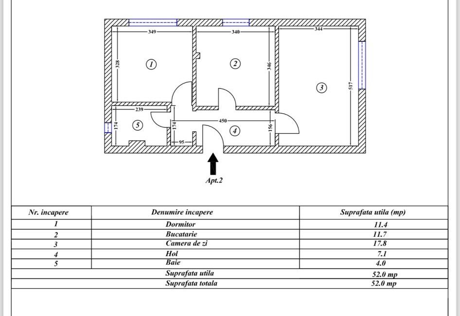
Se oferă spre vânzare apartament cu 2 camere, 52 mp, la parter, (boxă la subsol curată și uscată)situat într-un bloc din zona centrală a localității Berca, ideal pentru locuit sau investiție. Apartamentul beneficiază de o poziționare excelentă, având în imediata apropiere medic de familie, magazine și creșă, ceea ce îl face potrivit atât pentru familii, cât și pentru persoane în vârstă.
Locuința este bine compartimentată, oferind un spațiu confortabil și luminos. Acces facil către toate punctele de interes din zonă, cu avantajul unei vieți urbane comode, fără a renunța la liniștea specifică localității.
Ideal pentru cei care își doresc un apartament într-o zonă practică și bine conectată.
Se oferă spre vânzare apartament cu 2 camere, 52 mp, la parter, (boxă la subsol curată și uscată)situat într-un bloc din zona centrală a localității Berca, ideal pentru locuit sau investiție. Apartamentul beneficiază de o poziționare excelentă, având în imediata apropiere medic de familie, magazine și creșă, ceea ce îl face potrivit atât pentru familii, cât și pentru persoane în vârstă.
Locuința este bine compartimentată, oferind un spațiu confortabil și luminos. Acces facil către toate punctele de interes din zonă, cu avantajul unei vieți urbane comode, fără a renunța la liniștea specifică localității.
Ideal pentru cei care își doresc un apartament într-o zonă practică și bine conectată.
ID: 298002330
Contactează vânzătorul
xxx xxx xxx