Navighează la conținutul principal
Chat

Notificari

Adaugă anunț nou
Apartament cu 2 camere ultracentral-Podgoria
Postat 14 octombrie 2025

Apartament cu 2 camere ultracentral-Podgoria

59 000 €

Prețul e negociabil

PromoveazăReactualizează

Persoana fizica

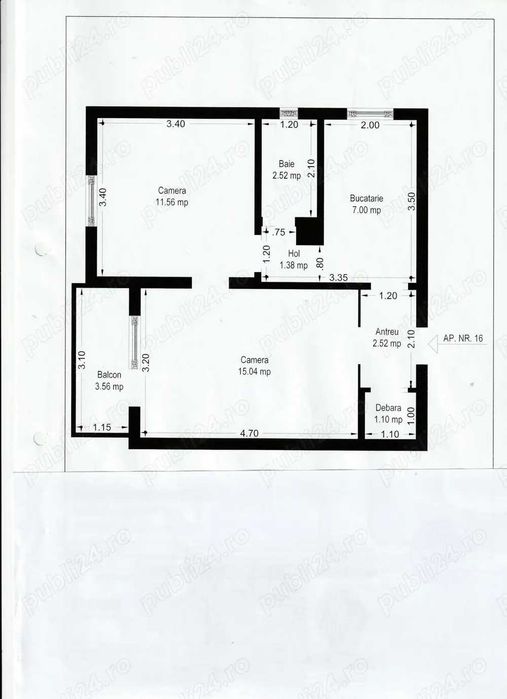
Compartimentare: Semidecomandat

Suprafata utila: 45 m²

An constructie: inainte de 1977

Etaj: 3

Descriere

Vand apartament situat in zona Podgoria (str Alecu Russo), Arad. Compartimentare semidecomandata (circulara), et 3 din 3, pod cu acoperis tigla in conditii foarte bune. Suprafata: 52 mp construiti conform CF, 45 mp utili (conform certificatului energetic). Utilitati: curent electric, gaz, apa si canalizare. Parcare: disponibila in imediata apropiere. Compartimentare: 2 camere (living + dormitor), bucatarie, debara, 2 holuri, balcon deschis, baie (cu cada si geam). Incalzire: CET (termoficare) cu calorifere, teava de gaz pt.centrala este in bloc;aer conditionat
ID: 291305910

Contactează vânzătorul

Ioana Crisan

Pe OLX din august 2025

Activ pe 14 octombrie 2025

xxx xxx xxx

Localitate

Location

Arad

Arad

Descarca aplicatia pentru telefonul tau