Postat 15 ianuarie 2026
Apartament 4 camere Centru Civic Iasi
299 000 €
Persoana fizica
Compartimentare: Decomandat
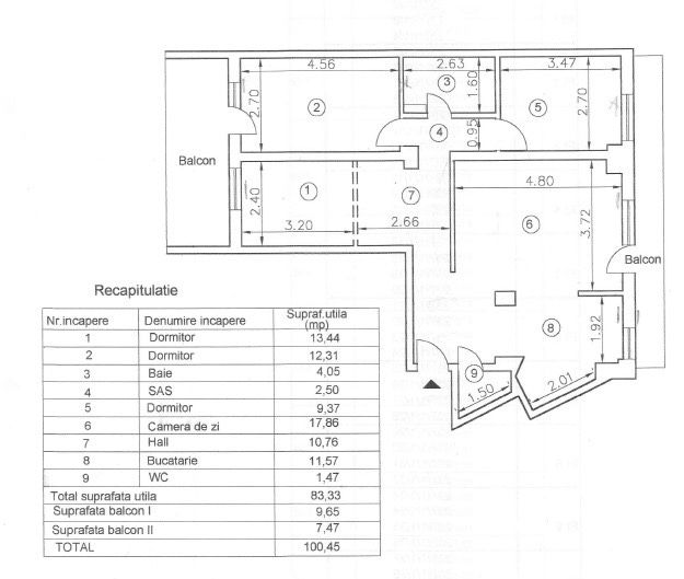
Suprafata utila: 100 m²
An constructie: 1977 – 1990
Etaj: 7
Descriere
Acesta este situat la etajul 7, oferind o priveliște frumoasă. Apartamentul are 4 camere, două băi și o bucătărie comună cu livingul.De asemenea, dispune de două balcoane ideale pentru relaxare. În plus, layout-ul este bine organizat, oferind confort și intimitate.
Locația este excelentă, aproape de Palas Mall și de diverse restaurante. Te bucuri de acces rapid la mijloacele de transport în comun. În apropiere se află și grădinile publice, perfecte pentru plimbări. Universitatea Tehnică „Gheorghe Asachi” este la câțiva pași, fiind ideal pentru studenți.
Dacă îți dorești un apartament într-o zonă centrală , vibrantă, nu ezita să îl vizionezi. Contactează-mă pentru mai multe detalii și pentru a programa o vizionare.
Locația este excelentă, aproape de Palas Mall și de diverse restaurante. Te bucuri de acces rapid la mijloacele de transport în comun. În apropiere se află și grădinile publice, perfecte pentru plimbări. Universitatea Tehnică „Gheorghe Asachi” este la câțiva pași, fiind ideal pentru studenți.
Dacă îți dorești un apartament într-o zonă centrală , vibrantă, nu ezita să îl vizionezi. Contactează-mă pentru mai multe detalii și pentru a programa o vizionare.
ID: 293778081
Contactează vânzătorul
xxx xxx xxx