Postat 30 octombrie 2025
Apartament 3 camere
162 000 €
Persoana fizica
Compartimentare: Semidecomandat
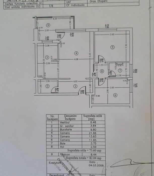
Suprafata utila: 74 m²
An constructie: Dupa 2000
Etaj: 1
Descriere
Apartamentul beneficiaza de o compartimentare functionala si un design modern, fiind ideal pentru familii sau pentru cei care isi doresc un spatiu generos si confortabil. Suprafata utila este atent optimizata pentru a oferi confort si intimitate.
Caracteristici principale:
3 camere spatioase si bine proportionate (living + 2 dormitoare)
2 bai moderne, dotate
Balcon spatios-approx 9 mp , perfect pentru relaxare sau socializare
Bucatarie semi- inchisa
Finisaje premium, cu atentie la detalii
Proprietatea se afla intr-o zona rezidentiala din Otopeni, cu acces rapid catre:
Mijloace de transport in comun
Aeroportul Henri Coanda
Centre comerciale (ex: Lidl, Mega Image, Mall Baneasa)
Scoli, gradinite si centre medicale
Acces facil catre DN1 si centura Bucurestiului
Ideal pentru familii, cu spatii aerisite si luminoase, apartamentul este o investitie sigura, datorita cererii ridicate din zona Otopeni. Comunitate civilizata si infrastructura moderna. Posibilitate de inchiriere imediata, cu randament bun- in acest moment apartamentul este inchiriat.
Impreuna cu apartamentul, se preia si locul de parcare- situat in fata blocului
Caracteristici principale:
3 camere spatioase si bine proportionate (living + 2 dormitoare)
2 bai moderne, dotate
Balcon spatios-approx 9 mp , perfect pentru relaxare sau socializare
Bucatarie semi- inchisa
Finisaje premium, cu atentie la detalii
Proprietatea se afla intr-o zona rezidentiala din Otopeni, cu acces rapid catre:
Mijloace de transport in comun
Aeroportul Henri Coanda
Centre comerciale (ex: Lidl, Mega Image, Mall Baneasa)
Scoli, gradinite si centre medicale
Acces facil catre DN1 si centura Bucurestiului
Ideal pentru familii, cu spatii aerisite si luminoase, apartamentul este o investitie sigura, datorita cererii ridicate din zona Otopeni. Comunitate civilizata si infrastructura moderna. Posibilitate de inchiriere imediata, cu randament bun- in acest moment apartamentul este inchiriat.
Impreuna cu apartamentul, se preia si locul de parcare- situat in fata blocului
ID: 294879285
Contactează vânzătorul
xxx xxx xxx
Localitate
Otopeni
Bucuresti - Ilfov