Navighează la conținutul principal
Chat

Notificari

Adaugă anunț nou
Apartament 3 cam, 58 mp, garaj, semifinisat,  Apahida
Apartament 3 cam, 58 mp, garaj, semifinisat,  Apahida
Postat Azi la 13:34

Apartament 3 cam, 58 mp, garaj, semifinisat, Apahida

88 000 €

PromoveazăReactualizează

Firma

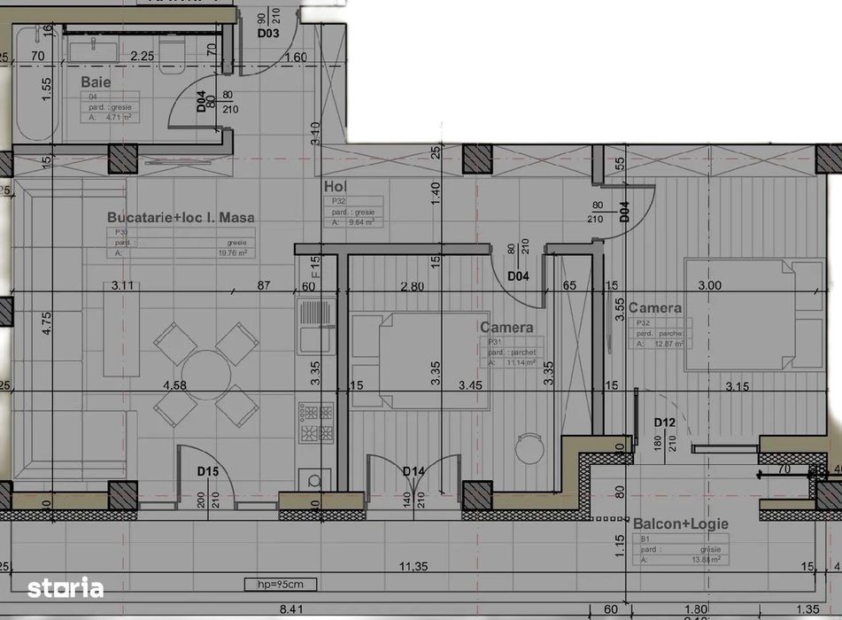
Suprafata utila: 58 m²

An constructie: Dupa 2000

Etaj: 1

Descriere

Cosma Home va propune spre vanzare un apartament cochet și eficient, cu o suprafață utilă de 58 mp, perfect compartimentat pentru a maximiza spațiul. Situat la etajul 1, oferă acces facil și rapid. Beneficiul major este garajul propriu inclus în preț, eliminând grija parcării. O locuință excelentă pentru familii sau ca investiție, combinând confortul cu practicitatea. Contactați-ne pentru mai multe detalii și vizionări!

ID: 293808096

Contactează vânzătorul

Facebook connected icon

Cosma Home

Pe OLX din februarie 2014

Activ ieri la 18:02

Vezi pe Storiaopens in a new tab

Localitate

Location

Apahida

Cluj

Descarca aplicatia pentru telefonul tau