Navighează la conținutul principal
Chat

Notificari

Contul tău

Adaugă anunț nou
Apartament 2 camere Tatarasi-Ciurchi
Postat 23 martie 2026

Apartament 2 camere Tatarasi-Ciurchi

43 500 €

PromoveazăReactualizează

Firma

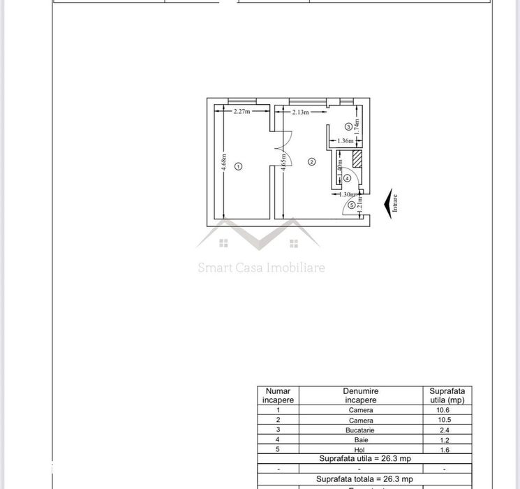
Suprafata utila: 26 m²

An constructie: inainte de 1977

Etaj: 2

Descriere

Va propunem spre vanzare un apartament cu 2 camere nedecomandat situat in zona Tatarasi- Ciurchi cu suprafata de 26,3 mp.



Imobilul este situat la etajul 2 din 4, se accepta si plata prin credit ipotecar.



Apartamentul necesita renovare totala !



Pret: 43.500 Euro



Aproape de mijloacele de transport in comun, scoli si gradinite.

Pentru mai multe detalii sau vizionari va stau la dispozitie.
ID: 301603477

Contactează vânzătorul

Ciuhureanu Ovidiu

Pe OLX din iulie 2017

Activ pe 06 martie 2026

Vezi pe Storiaopens in a new tab

Localitate

Location

Iasi

Iasi

Descarca aplicatia pentru telefonul tau