Reactualizat la 22 martie 2026
Apartament 2 camere renovat complet, mobilat, Bucureștii Noi
600 €
Persoana fizica
Descriere
Se oferă spre închiriere apartament cu 2 camere, complet renovat, situat în zona Bucureștii Noi, într-o zonă liniștită și bine conectată la transportul public.
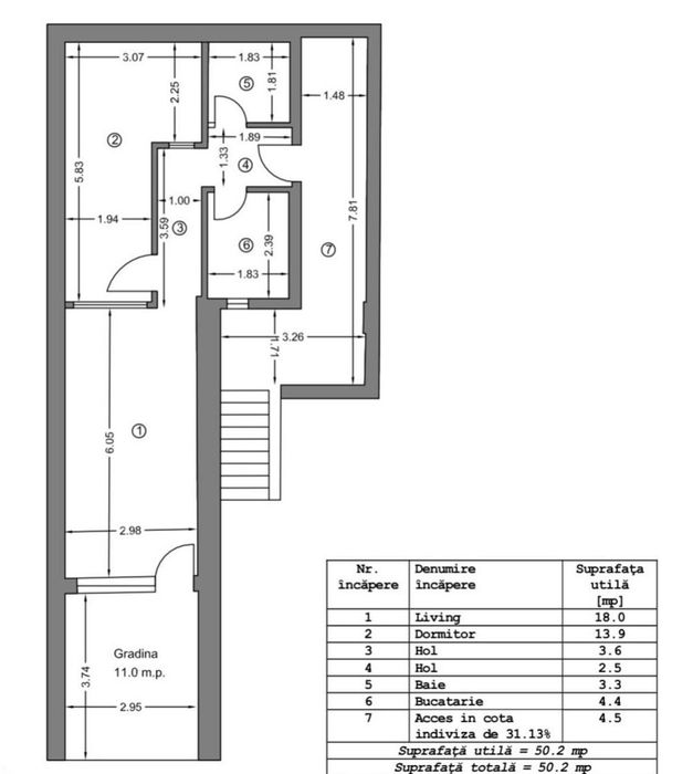
Apartamentul are o suprafață utilă de aproximativ 50 mp și dispune de intrare proprie, precum și de o mică grădină de aproximativ 11 mp.
Detalii apartament:
• Living spațios, mobilat
• Dormitor mobilat
• Bucătărie complet nouă, dotată cu frigider, cuptor și plită pe inducție
• Baie complet renovată, cu mașină de spălat
• Compartimentare practică și spațiu bine organizat
• Parcare disponibilă pe stradă
Etaj / Nivel:
• Demisol înalt
Localizare:
• Bucureștii Noi, zonă liniștită și verde
• Acces rapid la metrou
• Aproape de supermarketuri, restaurante, cafenele
• Parcul Bazilescu, școli și grădinițe în apropiere
• Acces facil către centru și ieșirea din București
• Mall Colosseum și zona Băneasa la aproximativ 10–15 minute
Preț:
600 € / lună – întreținerea este inclusă în preț
Utilitățile se achită separat (energie electrică etc.)
Apartamentul este potrivit pentru o persoană sau un cuplu care caută un spațiu renovat și gata de locuit.
Mențiuni:
• Agențiile imobiliare sunt rugate să contacteze doar cu client real pentru vizionare
• Comisionul se respectă
Contact:
WhatsApp: +49 173 2510274
Apartamentul are o suprafață utilă de aproximativ 50 mp și dispune de intrare proprie, precum și de o mică grădină de aproximativ 11 mp.
Detalii apartament:
• Living spațios, mobilat
• Dormitor mobilat
• Bucătărie complet nouă, dotată cu frigider, cuptor și plită pe inducție
• Baie complet renovată, cu mașină de spălat
• Compartimentare practică și spațiu bine organizat
• Parcare disponibilă pe stradă
Etaj / Nivel:
• Demisol înalt
Localizare:
• Bucureștii Noi, zonă liniștită și verde
• Acces rapid la metrou
• Aproape de supermarketuri, restaurante, cafenele
• Parcul Bazilescu, școli și grădinițe în apropiere
• Acces facil către centru și ieșirea din București
• Mall Colosseum și zona Băneasa la aproximativ 10–15 minute
Preț:
600 € / lună – întreținerea este inclusă în preț
Utilitățile se achită separat (energie electrică etc.)
Apartamentul este potrivit pentru o persoană sau un cuplu care caută un spațiu renovat și gata de locuit.
Mențiuni:
• Agențiile imobiliare sunt rugate să contacteze doar cu client real pentru vizionare
• Comisionul se respectă
Contact:
WhatsApp: +49 173 2510274
ID: 301163528
Contactează vânzătorul
xxx xxx xxx
Localitate
Bucuresti, Sectorul 1
Bucuresti - Ilfov