Postat 30 septembrie 2025
Apartament 2 Camere Decomadat Militari Toate Utilitatile
41 500 €
Persoana fizica
Compartimentare: Decomandat
Suprafata utila: 55 m²
An constructie: Dupa 2000
Etaj: 1
Descriere
“Lichidatorul judiciar al SC SOARELUI RESIDENCE SRL ( in faliment ) , A.H.&CO EXPERT INSOLV SPRL, anunţă vânzareain la licitaţie publica,deschisa crescatoare cu strigare cu pas minim de supraofertare de 500 euro a:
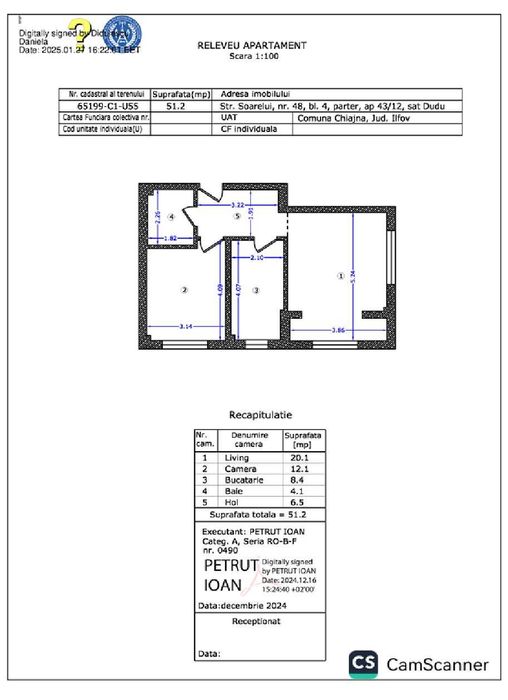
-apartament nr.43/12 cu 2 camere/ 1 baie in suprafata utila de 51,2 mp, cota parte indiviza 1,72 mp . numar cadastral 65199-C1-U55,situat in Soarelui, 48, sat Dudu, comuna Chiajna, judetul Ilfov preţul de pornire a licitaţiei este 54.400 euro exclusiv tva
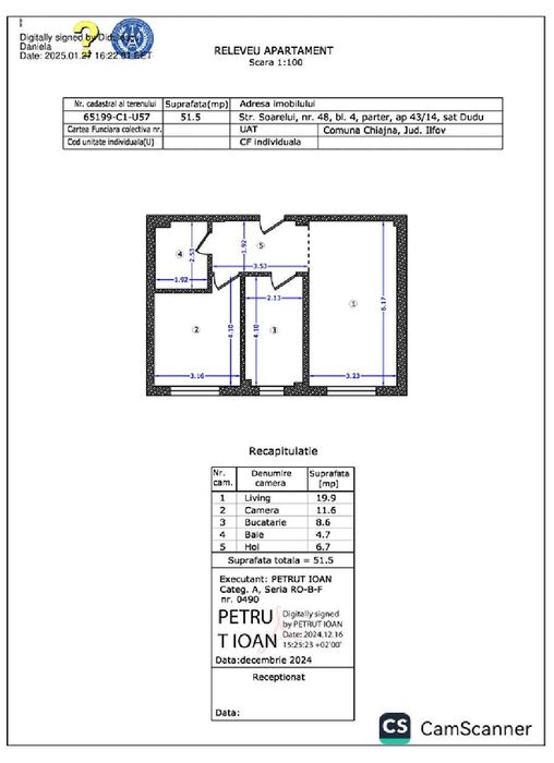
- apartament nr. 43/14 cu 2 camere/ 1 baie in suprafata utila de 51,5 mp, cota parte indiviza 1,73 mp . numar cadastral 65199-C1-U57,situat in Soarelui, 48, sat Dudu, comuna Chiajna, judetul Ilfov preţul de pornire a licitaţiei este 54.600 euro exclusiv tva
- apartament nr. 43/15 cu 2 camere/ 1 baie in suprafata utila de 52,2 mp, cota parte indiviza 1,75mp . numar cadastral 65199-C1-U58 ,situat in Soarelui, 48, sat Dudu, comuna Chiajna, judetul Ilfov preţul de pornire a licitaţiei este 53.200 euro exclusiv tva
-apartament nr. 43/6 cu 2 camere/ 1 baie in suprafata utila de 51,2 mp, cota parte indiviza 1,72 mp . numar cadastral 65199-C1-U49 ,situat in Soarelui, 48, sat Dudu, comuna Chiajna, judetul Ilfov preţul de pornire a licitaţiei este 43.300 euro exclusiv tva
- apartament nr. 43/7 cu 2 camere/ 2 bai in suprafata utila de 51,3 mp, cota parte indiviza 1,72 mp . numar cadastral 65199-C1-U50 ,situat in Soarelui, 48, sat Dudu, comuna Chiajna, judetul Ilfov preţul de pornire a licitaţiei este 41.500 euro exclusiv tva
Licitaţia se va organiza in conformitate cu Regulamentul de organizare şi desfăşurare a licitaţiei, si Caietul de Sarcini . Licitatorii interesati vor depune cererea de participare , vor cumpara caietul de sarcini ,vor face dovada plăţii garanţiei reprezentând 10 % din preţul de pornire, a taxei de participare la licitatie, si taxei Caietul de Sarcini licitatie de 500 lei plus tva cu 2 zile inainte de data licitatiei. Licitatia va avea loc in data de ‚01.10.2025 incepand cu ora 15.00, iar daca nu se realiza vanzarea, va fi reluata saptamanal, luni la aceeasi ora 15 incepand cu data de 06.10.2025, si se va tine la sediul lichidatorului din Str.Cap.Constantin Vasilescu,nr.6,ap.36,sector 4, Bucuresti.Caietul de sarcini si taxa de participare se achita la lichidatorul judiciar, tel. 0314258853./mobil 07******06,Persoanele care reclama vreun drept asupra activului se vor adresa lichidatorului judiciar cu cel putin 5 zile inainte de data fixata pentru licitatie.
-apartament nr.43/12 cu 2 camere/ 1 baie in suprafata utila de 51,2 mp, cota parte indiviza 1,72 mp . numar cadastral 65199-C1-U55,situat in Soarelui, 48, sat Dudu, comuna Chiajna, judetul Ilfov preţul de pornire a licitaţiei este 54.400 euro exclusiv tva
- apartament nr. 43/14 cu 2 camere/ 1 baie in suprafata utila de 51,5 mp, cota parte indiviza 1,73 mp . numar cadastral 65199-C1-U57,situat in Soarelui, 48, sat Dudu, comuna Chiajna, judetul Ilfov preţul de pornire a licitaţiei este 54.600 euro exclusiv tva
- apartament nr. 43/15 cu 2 camere/ 1 baie in suprafata utila de 52,2 mp, cota parte indiviza 1,75mp . numar cadastral 65199-C1-U58 ,situat in Soarelui, 48, sat Dudu, comuna Chiajna, judetul Ilfov preţul de pornire a licitaţiei este 53.200 euro exclusiv tva
-apartament nr. 43/6 cu 2 camere/ 1 baie in suprafata utila de 51,2 mp, cota parte indiviza 1,72 mp . numar cadastral 65199-C1-U49 ,situat in Soarelui, 48, sat Dudu, comuna Chiajna, judetul Ilfov preţul de pornire a licitaţiei este 43.300 euro exclusiv tva
- apartament nr. 43/7 cu 2 camere/ 2 bai in suprafata utila de 51,3 mp, cota parte indiviza 1,72 mp . numar cadastral 65199-C1-U50 ,situat in Soarelui, 48, sat Dudu, comuna Chiajna, judetul Ilfov preţul de pornire a licitaţiei este 41.500 euro exclusiv tva
Licitaţia se va organiza in conformitate cu Regulamentul de organizare şi desfăşurare a licitaţiei, si Caietul de Sarcini . Licitatorii interesati vor depune cererea de participare , vor cumpara caietul de sarcini ,vor face dovada plăţii garanţiei reprezentând 10 % din preţul de pornire, a taxei de participare la licitatie, si taxei Caietul de Sarcini licitatie de 500 lei plus tva cu 2 zile inainte de data licitatiei. Licitatia va avea loc in data de ‚01.10.2025 incepand cu ora 15.00, iar daca nu se realiza vanzarea, va fi reluata saptamanal, luni la aceeasi ora 15 incepand cu data de 06.10.2025, si se va tine la sediul lichidatorului din Str.Cap.Constantin Vasilescu,nr.6,ap.36,sector 4, Bucuresti.Caietul de sarcini si taxa de participare se achita la lichidatorul judiciar, tel. 0314258853./mobil 07******06,Persoanele care reclama vreun drept asupra activului se vor adresa lichidatorului judiciar cu cel putin 5 zile inainte de data fixata pentru licitatie.
ID: 293070829
Contactează vânzătorul
xxx xxx xxx
Localitate
Chiajna
Bucuresti - Ilfov