Postat 02 martie 2026
Apartament 2 camere, 59.5mp, bloc nou, zona Corneliu Coposu
121 975 €
Firma
Suprafata utila: 60 m²
An constructie: Dupa 2000
Etaj: 3
Descriere
Blitz ofera spre vanzare un apartament de 2 camere in cartierul Dambu Rotund. In imediata apropiere aveti acces la multiple facilitati precum supermarket, statie de autobuz, sala de sport.
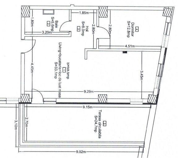
Apartamentul are o compartimentare moderna, fiind compus din living cu bucatarie open space, dormitor, baie si o terasa generoasa de aprox. 25mp. Acesta se afla la etajul 3 unui bloc nou, finalizat in 2023, retras de la strada principala. Apartamentul se preda mobilat si utilat.
Optional, se poate achizitiona si un loc de parcare subterna (15000 euro TVA inclus). La pretul afisat al apartamentului se adauga TVA.
Apartamentul este ideal atat pentru investitie, cat si pentru locuinta proprie. Va asteptam la vizionare!
Cod ofertă / ID BLITZ: P165643
Apartamentul are o compartimentare moderna, fiind compus din living cu bucatarie open space, dormitor, baie si o terasa generoasa de aprox. 25mp. Acesta se afla la etajul 3 unui bloc nou, finalizat in 2023, retras de la strada principala. Apartamentul se preda mobilat si utilat.
Optional, se poate achizitiona si un loc de parcare subterna (15000 euro TVA inclus). La pretul afisat al apartamentului se adauga TVA.
Apartamentul este ideal atat pentru investitie, cat si pentru locuinta proprie. Va asteptam la vizionare!
Cod ofertă / ID BLITZ: P165643
ID: 300200175
Contactează vânzătorul
Localitate
Cluj-Napoca
Cluj