Postat 15 ianuarie 2026
Apartament 2 cam, cf 1, m11 , 50mp, parter, Penny
45 000 €
Firma
Compartimentare: Decomandat
Suprafata utila: 50 m²
An constructie: 1977 – 1990
Etaj: Parter
Descriere
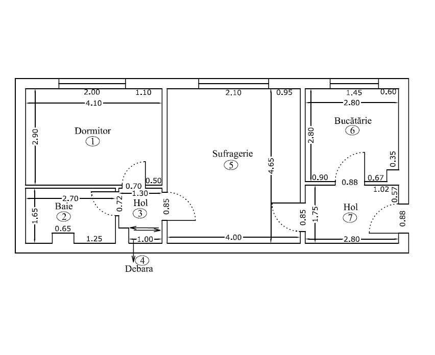
De vanzare apartament 2 camere, decomandat, 50mp utili, parter, str. Petru Cercel, langa Penny M11, bloc cu intrare din strada principala.
A fost achizitionat cu scopul de a-l transforma in spatiu comercial, datorita pozitiei favorabile, catre strada Petru Cercel.
Apartamentul a fost eliberat complet pentru a fi modificat complet. Instalatia electrica a fost finalizata, caluri de foarte buna calitate, ingnifuge, circuite separate pt plita electrica, masina de spalat, masina de spalat vase, centrala, aer conditionat, internet si cablu tv in doze.
Geamuri termopan, centrala, calorifere, usi de interior din aluminiu.
Noul proprietar va putea continua lucrarile dupa cum doreste.
Datorita pozitiei foarte bune, dar mai ales a faptului ca se afla la parter, cu zona gard viu in fata apartamentul, reprezinta o buna oportunitate pt transformare in spatiu comercial - salon infrumusetare, cabinet notarial, cabinet medical etc.
Nu doresc sa fiu contactat de agentii, vanzarea se va face fara intermediari, deci fara comision.
A fost achizitionat cu scopul de a-l transforma in spatiu comercial, datorita pozitiei favorabile, catre strada Petru Cercel.
Apartamentul a fost eliberat complet pentru a fi modificat complet. Instalatia electrica a fost finalizata, caluri de foarte buna calitate, ingnifuge, circuite separate pt plita electrica, masina de spalat, masina de spalat vase, centrala, aer conditionat, internet si cablu tv in doze.
Geamuri termopan, centrala, calorifere, usi de interior din aluminiu.
Noul proprietar va putea continua lucrarile dupa cum doreste.
Datorita pozitiei foarte bune, dar mai ales a faptului ca se afla la parter, cu zona gard viu in fata apartamentul, reprezinta o buna oportunitate pt transformare in spatiu comercial - salon infrumusetare, cabinet notarial, cabinet medical etc.
Nu doresc sa fiu contactat de agentii, vanzarea se va face fara intermediari, deci fara comision.
ID: 298106096
Contactează vânzătorul
xxx xxx xxx
Localitate
Targoviste
Dambovita