Postat 17 septembrie 2025
Apart 3 cam Greenfield Baneasa + Parcare. Comision 0
186 000 €
Persoana fizica
Compartimentare: Decomandat
Suprafata utila: 90 m²
An constructie: Dupa 2000
Etaj: 1
Descriere
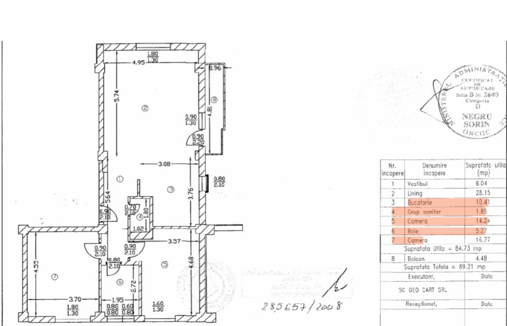
Vanzare apartament 3 camere decomandat in Greenfield Baneasa, cartier Rubin.
Imobilul este construit in 2008, apartamentul fiind pozitionat ideal la etajul 1 din 2, cu doar 6 apartamente in bloc. Vedere neobturata, trilateral, in jurul blocului multa verdeata. Exista asociatie de proprietari, paza, iar accesul in cartier se face pe baza de cartela.
Apartamentul are o suprafata totala utila de 85mp: bucatarie - 10mp, living-28mp, 2 dormitoare mari (14 si 17), baie si grup sanitar. Se adauga un balcon de 5mp care este inchis cu geamuri pliabile din sticla.
Se vinde asa cum se vede in poze.
Locul de parcare privat este inclus in pretul afisat.
Vecinatati: Aeroportul Otopeni, Baneasa Shopping Mall, Gradina Zoologica.
Are certificat energetic, acte pregatite pentru vanzare.
Imobilul este construit in 2008, apartamentul fiind pozitionat ideal la etajul 1 din 2, cu doar 6 apartamente in bloc. Vedere neobturata, trilateral, in jurul blocului multa verdeata. Exista asociatie de proprietari, paza, iar accesul in cartier se face pe baza de cartela.
Apartamentul are o suprafata totala utila de 85mp: bucatarie - 10mp, living-28mp, 2 dormitoare mari (14 si 17), baie si grup sanitar. Se adauga un balcon de 5mp care este inchis cu geamuri pliabile din sticla.
Se vinde asa cum se vede in poze.
Locul de parcare privat este inclus in pretul afisat.
Vecinatati: Aeroportul Otopeni, Baneasa Shopping Mall, Gradina Zoologica.
Are certificat energetic, acte pregatite pentru vanzare.
ID: 281738676
Contactează vânzătorul
xxx xxx xxx
Localitate
Bucuresti, Sectorul 1
Bucuresti - Ilfov