Reactualizat la 29 ianuarie 2026
70 incaperi, 1700 mp curte, Unirii, Bucuresti. Multiple destinatii.
1 490 500 €
Prețul e negociabil
Firma
Suprafata utila: 1 700 m²
Descriere
OPORTUNITATE DE INVESTITII
ZONA CENTRALA - UNIRII-MATEI BASARAB -
Strada Parfumului Sector 3 Bucuresti
1700 mp teren, 1000 mp construit desfasurat, peste 70 incaperi din care peste 30 camere locuit, multe cu dusuri in camera - 1.500.000 euro
Este disponibila o locatie centrala, singur in curte, (teren 1750 mp+ constructii 1000 mp), cu multiple intrari pentru acces parter si mansarda, cu destinatie pretabila pentru locuinta + hostel, pensiune, birouri, cazare personal, camin varstnici sau studenti, gradinita, creatori de continut online, videochat si orice alt domeniu unde este util un numar mare de camere de tip pensiune, cu dus in camera si locuri de parcare .
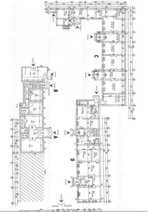
Primul Imobil 325 mp
Corpurile A+B
S+P+M – in proprietate cu cadastru si intabulare se vinde de pe persoana fizica
9 camere, o bucatarie, 4 bai , 5 dusuri in 5 camere, un grup sanitar, o camera- pivnita/subsol, intrare separata cu scara interioara pentru mansarda
Finisaje - tavane casetate, parchet, granit
Mobilat complet, utilat complet
Teren in proprietate de 160 mp, prin legea 112 + drept de servitute pt alti aprox 1000mp din curtea comuna cu al doilea imobil C+D (pt aceste aspect dorim sa vindem unei singure entitati care sa achizitioneze A+B si sa administreze si C+D).
Al doilea imobil 675 m
Corpurile C + D
S+P+M. Pentru acest imobil se cesioneaza gratuit o asociatie ONG care detine spatiul prin contract de inchiriere de la Primaria Capitalei din 2001
26 camere, 7 bai, 6 dusuri, 2 bucatarii
2 magazii, 3 pivnite (75 mp), 3 scari de acces etaj;
Corpul D are finisaje de lux,
Corpul C Finisaje - tavane casetate, parchet, granit, gresie
Mobilat complet, utilat complet
Chirie catre PMB: 500 euro/luna din care:
250 euro pt cladiri
250 euro pt 500 mp de teren.
1000 mp de teren sunt in folosinta gratuita impreuna cu imobilul A+B
ZONA CENTRALA - UNIRII-MATEI BASARAB -
Strada Parfumului Sector 3 Bucuresti
1700 mp teren, 1000 mp construit desfasurat, peste 70 incaperi din care peste 30 camere locuit, multe cu dusuri in camera - 1.500.000 euro
Este disponibila o locatie centrala, singur in curte, (teren 1750 mp+ constructii 1000 mp), cu multiple intrari pentru acces parter si mansarda, cu destinatie pretabila pentru locuinta + hostel, pensiune, birouri, cazare personal, camin varstnici sau studenti, gradinita, creatori de continut online, videochat si orice alt domeniu unde este util un numar mare de camere de tip pensiune, cu dus in camera si locuri de parcare .
Primul Imobil 325 mp
Corpurile A+B
S+P+M – in proprietate cu cadastru si intabulare se vinde de pe persoana fizica
9 camere, o bucatarie, 4 bai , 5 dusuri in 5 camere, un grup sanitar, o camera- pivnita/subsol, intrare separata cu scara interioara pentru mansarda
Finisaje - tavane casetate, parchet, granit
Mobilat complet, utilat complet
Teren in proprietate de 160 mp, prin legea 112 + drept de servitute pt alti aprox 1000mp din curtea comuna cu al doilea imobil C+D (pt aceste aspect dorim sa vindem unei singure entitati care sa achizitioneze A+B si sa administreze si C+D).
Al doilea imobil 675 m
Corpurile C + D
S+P+M. Pentru acest imobil se cesioneaza gratuit o asociatie ONG care detine spatiul prin contract de inchiriere de la Primaria Capitalei din 2001
26 camere, 7 bai, 6 dusuri, 2 bucatarii
2 magazii, 3 pivnite (75 mp), 3 scari de acces etaj;
Corpul D are finisaje de lux,
Corpul C Finisaje - tavane casetate, parchet, granit, gresie
Mobilat complet, utilat complet
Chirie catre PMB: 500 euro/luna din care:
250 euro pt cladiri
250 euro pt 500 mp de teren.
1000 mp de teren sunt in folosinta gratuita impreuna cu imobilul A+B
ID: 269841477
Contactează vânzătorul
xxx xxx xxx
Localitate
Bucuresti, Sectorul 3
Bucuresti - Ilfov