Postat 15 septembrie 2025
400/800mp Teren Harman aproape de centru cu UTILITATI
99 €
Persoana fizica
Suprafata utila: 400 m²
Extravilan / intravilan: Intravilan
Descriere
1 lot teren INTRAVILAN 400mp - curți construcții -39000€
Dețin ridicare TOPO
Dețin 2 loturi alăturate - ambele -77000€
Loturile au dimensiuni regulare de 20/20 M
În PUZ SUNT TRECUTE STRĂZI DE 9M cu 2 benzi și spații verzi pe ambele părți ale străzii
Ambele terenuri au dublă deschidere
Certificat urbanism nou
Conform contract cumpărare utilitățile vor fi trase la limita proprietății - curent apă canal ( în acest moment sunt la 15 M de limita terenului ( curent canal apă CATV )
Intabulat persoană fizică
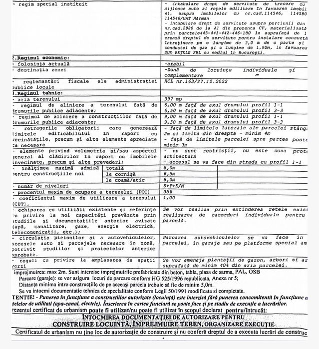
Regim tehnic
S+E+E/M
Procent ocupare 35%
CUT 1%
Terenul este pătrat 20X20 m
Avantajul este reprezentat de accesul rapid in Brașov datorita celor 2 benzi pe sens indiferent de ora .
Școala Centru -500m
Mega Image - 100m
Statie autobuz-100
Dețin ridicare TOPO
Dețin 2 loturi alăturate - ambele -77000€
Loturile au dimensiuni regulare de 20/20 M
În PUZ SUNT TRECUTE STRĂZI DE 9M cu 2 benzi și spații verzi pe ambele părți ale străzii
Ambele terenuri au dublă deschidere
Certificat urbanism nou
Conform contract cumpărare utilitățile vor fi trase la limita proprietății - curent apă canal ( în acest moment sunt la 15 M de limita terenului ( curent canal apă CATV )
Intabulat persoană fizică
Regim tehnic
S+E+E/M
Procent ocupare 35%
CUT 1%
Terenul este pătrat 20X20 m
Avantajul este reprezentat de accesul rapid in Brașov datorita celor 2 benzi pe sens indiferent de ora .
Școala Centru -500m
Mega Image - 100m
Statie autobuz-100
ID: 266417832
Contactează vânzătorul
xxx xxx xxx
Localitate
Harman
Brasov