Postat 12 aprilie 2026
3 camere cu terasă panoramică 55 mp tip Penthouse – Vivalia - Centru
199 000 €
Prețul e negociabil
Persoana fizica
Compartimentare: Decomandat
Suprafata utila: 67 m²
An constructie: Dupa 2000
Etaj: 5
Descriere
Se oferă spre vânzare un apartament deosebit cu 3 camere, situat la etajul 5 din 7 într-un imobil modern construit în 2019, în cadrul complexului rezidențial Vivalia Grand. (persona fizica fara TVA si fara comisiune agentiei)
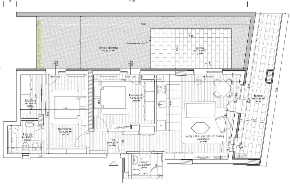
Apartamentul se remarcă printr-o terasă spectaculoasă în aer liber de 43 mp, completată de un balcon acoperit de 12 mp, oferind în total 55 mp de spațiu exterior, o caracteristică rară pentru zona centrală a Timișoarei.
Datorită orientării sud-est, locuința beneficiază de lumină naturală pe tot parcursul zilei și de vedere panoramică deschisă asupra orașului și asupra Isho & viitorului hotel Radisson.
Caracteristici principale
Suprafață utilă: 67 mp
Terasă deschisă: 43 mp
Balcon acoperit: 12 mp
Suprafață totală: 122 mp
Compartimentare
Living spațios cu bucătărie open-space
2 dormitoare (1 matrimoniala cu baie si dressing)
2 băi
hol
dressing
terasă panoramică
Dotări
Bucătărie realizată la comandă din MDF
Apartament complet mobilat și utilat
Finisaje moderne
Clădire cu lift și spații comune de calitate
Localizare excelentă
Apartamentul este situat într-o zonă foarte bine conectată:
5 minute de mers pe jos până la centrul Longevity / World Class ISHO
10 minute până la Facultatea de Medicină
10 minute până în centrul orașului
15 minute până la Iulius Town
Proprietatea este ideală atât pentru locuință personală, cât și pentru investiție, datorită poziției excelente și a spațiului exterior generos.
Locuri de parcare
Există posibilitatea achiziționării separate a două locuri de parcare suprapuse cu sistem lift, situate în parcarea subterană a imobilului.
Preț locuri de parcare (opțional): 12.000 €
Preț apartament
199.000 €
Pentru mai multe informații sau programarea unei vizionări, vă rugăm să ne contactați.
-
Exceptional 2-Bedroom Apartment with 55 sqm Terrace – Vivalia Grand
An outstanding 3-room apartment is offered for sale, located on the 5th floor of a 7-story modern building completed in 2019, within the Vivalia Grand residential complex.
(Private owner – no VAT and no agency commission.)
The apartment stands out thanks to its spectacular 43 sqm open terrace, complemented by a 12 sqm covered balcony, offering a total of 55 sqm of outdoor space – a rare feature for the central area of Timișoara.
Thanks to its south-east orientation, the property benefits from natural light throughout the day and offers open panoramic views over the city, ISHO district, and the future Radisson Hotel.
Key Features
Usable interior area: 67 sqm
Open terrace: 43 sqm
Covered balcony: 12 sqm
Total area: 122 sqm
Layout
Spacious living room with open-plan kitchen
2 bedrooms (1 Matrimonial with dressing and bathroom)
2 bathrooms
Hallway
Walk-in dressing area
Panoramic terrace
Features & Equipment
Custom-made MDF kitchen
Fully furnished and equipped
Modern finishes
Building with elevator and high-quality common areas
Excellent Location
The apartment is located in a very well-connected area, within walking distance of key destinations:
5 minutes walk to Longevity Center / World Class ISHO
10 minutes to the Faculty of Medicine
10 minutes to Timișoara city center
15 minutes to Iulius Town
The property is ideal both as a primary residence and as an investment, thanks to its excellent location and generous outdoor space.
Parking
There is the option to purchase two stacked parking spaces with lift system, located in the building’s underground parking garage.
Parking price (optional): €12,000
Apartment Price
€199,000
For more information or to schedule a viewing, please feel free to contact us.
Apartamentul se remarcă printr-o terasă spectaculoasă în aer liber de 43 mp, completată de un balcon acoperit de 12 mp, oferind în total 55 mp de spațiu exterior, o caracteristică rară pentru zona centrală a Timișoarei.
Datorită orientării sud-est, locuința beneficiază de lumină naturală pe tot parcursul zilei și de vedere panoramică deschisă asupra orașului și asupra Isho & viitorului hotel Radisson.
Caracteristici principale
Suprafață utilă: 67 mp
Terasă deschisă: 43 mp
Balcon acoperit: 12 mp
Suprafață totală: 122 mp
Compartimentare
Living spațios cu bucătărie open-space
2 dormitoare (1 matrimoniala cu baie si dressing)
2 băi
hol
dressing
terasă panoramică
Dotări
Bucătărie realizată la comandă din MDF
Apartament complet mobilat și utilat
Finisaje moderne
Clădire cu lift și spații comune de calitate
Localizare excelentă
Apartamentul este situat într-o zonă foarte bine conectată:
5 minute de mers pe jos până la centrul Longevity / World Class ISHO
10 minute până la Facultatea de Medicină
10 minute până în centrul orașului
15 minute până la Iulius Town
Proprietatea este ideală atât pentru locuință personală, cât și pentru investiție, datorită poziției excelente și a spațiului exterior generos.
Locuri de parcare
Există posibilitatea achiziționării separate a două locuri de parcare suprapuse cu sistem lift, situate în parcarea subterană a imobilului.
Preț locuri de parcare (opțional): 12.000 €
Preț apartament
199.000 €
Pentru mai multe informații sau programarea unei vizionări, vă rugăm să ne contactați.
-
Exceptional 2-Bedroom Apartment with 55 sqm Terrace – Vivalia Grand
An outstanding 3-room apartment is offered for sale, located on the 5th floor of a 7-story modern building completed in 2019, within the Vivalia Grand residential complex.
(Private owner – no VAT and no agency commission.)
The apartment stands out thanks to its spectacular 43 sqm open terrace, complemented by a 12 sqm covered balcony, offering a total of 55 sqm of outdoor space – a rare feature for the central area of Timișoara.
Thanks to its south-east orientation, the property benefits from natural light throughout the day and offers open panoramic views over the city, ISHO district, and the future Radisson Hotel.
Key Features
Usable interior area: 67 sqm
Open terrace: 43 sqm
Covered balcony: 12 sqm
Total area: 122 sqm
Layout
Spacious living room with open-plan kitchen
2 bedrooms (1 Matrimonial with dressing and bathroom)
2 bathrooms
Hallway
Walk-in dressing area
Panoramic terrace
Features & Equipment
Custom-made MDF kitchen
Fully furnished and equipped
Modern finishes
Building with elevator and high-quality common areas
Excellent Location
The apartment is located in a very well-connected area, within walking distance of key destinations:
5 minutes walk to Longevity Center / World Class ISHO
10 minutes to the Faculty of Medicine
10 minutes to Timișoara city center
15 minutes to Iulius Town
The property is ideal both as a primary residence and as an investment, thanks to its excellent location and generous outdoor space.
Parking
There is the option to purchase two stacked parking spaces with lift system, located in the building’s underground parking garage.
Parking price (optional): €12,000
Apartment Price
€199,000
For more information or to schedule a viewing, please feel free to contact us.
ID: 301561925
Contactează vânzătorul
xxx xxx xxx